Maison neuve à
La Membrolle-sur-Longuenée (49770) Référence : RS2395146_2

Prix du projet : Maison avec Terrain

prix 304 200 €

  • 5 pièces
  • 4 chambres
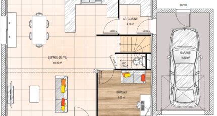
  • Surface maison 110 m2

La Membrolle-sur-Longuenée : maison de 5 pièces (110 m²) à vendre
MAISON 5 PIÈCES NEUVE - PROCHE D'ANGERS
En vente : localisée à deux pas d'Angers, nous vous proposons cette maison de 5 pièces de 110 m² et de 513 m² de terrain à La Membrolle-sur-Longuenée (49770). Son intérieur se divise en quatre chambres, une cuisine et deux salles de bains.
C'est une maison de 2 niveaux. Elle est neuve.
Il y a l'École Primaire Publique le Petit Prince à moins de 10 minutes à pied. Il y a un accès à l'autoroute A11 à 6 km. On trouve une boucherie-charcuterie à proximité de la maison.
Elle est proposée à l'achat pour 304 200 €.
Contactez notre agence (Roman SALAS : 02-41-77-17-17) pour obtenir de plus amples renseignements sur la maison.

Mentions légales

Terrain proposé par un partenaire foncier selon disponibilités et autorisation de publicité au prix de 92 340 €. Hors droit d'enregistrement et frais de notaire. Terrain + Maison proposés au prix de 304 200 € (Hors branchements et raccordements, papiers peints, peintures, revêtement de sol dans les chambres. Tarif modifiable sans préavis). Etiquette énergie : A. Différents modèles disponibles pour ce terrain. Assurances et garanties du constructeur (RC professionnelle, décennale, dommage ouvrage, garantie de remboursement de l'acompte, livraison à prix et délai convenu) : https://www.maisons-bernard-jambert.com/informations-legales/.

Contactez l'agence de Angers

02 41 77 17 17

    * Champs obligatoires

    Vos informations sont traitées par HEXAOM et transmises à un conseiller commercial qui vous contactera afin de répondre à votre demande. Les plans et images présentés sur notre site sont la propriété d’HEXAOM et ne peuvent pas être reproduits sans son accord. Pour retrouver notre politique de protection des données personnelles et exercer vos droits conformément à la « loi informatique et liberté » cliquez-ici.