Maison neuve à
La Membrolle-sur-Longuenée (49770) Référence : RS2340297_4

Prix du projet : Maison avec Terrain

prix 338 700 €

  • 6 pièces
  • 4 chambres
  • Surface maison 126 m2

Maison de 6 pièces (126 m²) à vendre à La Membrolle-sur-Longuenée
MAISON 6 PIÈCES NEUVE - PROCHE D'ANGERS
À vendre à deux pas d'Angers, Maisons Bernard Jambert Angers vous propose cette maison de 6 pièces de 126 m² et de 501 m² de terrain à La Membrolle-sur-Longuenée (49770).
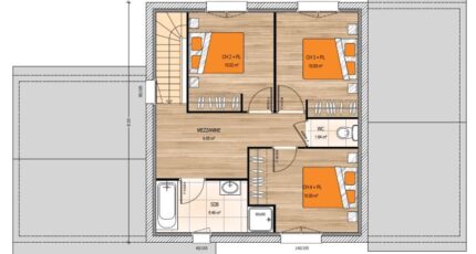
Il s'agit d'une maison de 2 niveaux. Son intérieur est composé de quatre chambres, d'une cuisine et de deux salles de bains. La maison est neuve.
Il y a l'École Primaire Publique le Petit Prince à moins de 10 minutes à pied. L'autoroute A11 est accessible à 6 km. On trouve une boucherie-charcuterie à proximité.
Son prix de vente est de 338 700 €.
Contactez Roman SALAS (02-41-77-17-17) pour plus de renseignements sur la maison. Donnez vie à vos projets immobiliers avec Maisons Bernard Jambert Angers.

Mentions légales

Terrain proposé par un partenaire foncier selon disponibilités et autorisation de publicité au prix de 90 180 €. Hors droit d'enregistrement et frais de notaire. Maison proposée, avec un contrat de construction de maison individuelle, dans le cadre de la loi du 19/12/1990, au prix de 248 520 € (Hors branchements et raccordements, papiers peints, peintures, revêtement de sol dans les chambres, qui sont chiffrés dans les travaux qui restent à charge du client. Tarif modifiable sans préavis). Étiquette énergie : A. Différents modèles disponibles pour ce terrain. Assurances et garanties du constructeur comprises (RC professionnelle, décennale, dommage ouvrage).

Contactez l'agence de Angers

02 41 77 17 17

    * Champs obligatoires

    Vos informations sont traitées par HEXAOM et transmises à un conseiller commercial qui vous contactera afin de répondre à votre demande. Les plans et images présentés sur notre site sont la propriété d’HEXAOM et ne peuvent pas être reproduits sans son accord. Pour retrouver notre politique de protection des données personnelles et exercer vos droits conformément à la « loi informatique et liberté » cliquez-ici.