Maison neuve à
La Membrolle-sur-Longuenée (49770) Référence : RS2340297_1

Prix du projet : Maison avec Terrain

prix 278 500 €

  • 5 pièces
  • 3 chambres
  • Surface maison 85 m2

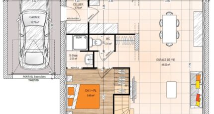
Maison de 5 pièces (85 m²) à vendre à La Membrolle-sur-Longuenée
PROCHE D'ANGERS - MAISON 5 PIÈCES NEUVE
En vente à quelques kilomètres d'Angers, à La Membrolle-sur-Longuenée (49770), nous vous proposons cette maison de 5 pièces de 85 m² et de 501 m² de terrain.
Cette maison possède 2 niveaux. Son intérieur propose trois chambres, une cuisine et deux salles de bains. Cette maison est neuve.
Il y a l'École Primaire Publique le Petit Prince à moins de 10 minutes à pied. On trouve un accès à l'autoroute A11 à 6 km. On trouve une boucherie-charcuterie à proximité du bien.
Elle est proposée à l'achat pour 278 500 €.
N'hésitez pas à prendre contact avec notre agence (Roman SALAS : 02-41-77-17-17) pour obtenir de plus amples renseignements sur la maison. Donnez vie à vos projets immobiliers avec Maisons Bernard Jambert Angers.

Mentions légales

Terrain proposé par un partenaire foncier selon disponibilités et autorisation de publicité au prix de 90 180 €. Hors droit d'enregistrement et frais de notaire. Maison proposée, avec un contrat de construction de maison individuelle, dans le cadre de la loi du 19/12/1990, au prix de 188 320 € (Hors branchements et raccordements, papiers peints, peintures, revêtement de sol dans les chambres, qui sont chiffrés dans les travaux qui restent à charge du client. Tarif modifiable sans préavis). Étiquette énergie : A. Différents modèles disponibles pour ce terrain. Assurances et garanties du constructeur comprises (RC professionnelle, décennale, dommage ouvrage).

Contactez l'agence de Angers

02 41 77 17 17

    * Champs obligatoires

    Vos informations sont traitées par HEXAOM et transmises à un conseiller commercial qui vous contactera afin de répondre à votre demande. Les plans et images présentés sur notre site sont la propriété d’HEXAOM et ne peuvent pas être reproduits sans son accord. Pour retrouver notre politique de protection des données personnelles et exercer vos droits conformément à la « loi informatique et liberté » cliquez-ici.