Maison neuve à
Juigné-sur-Loire (49610) Référence : RS2445974_2

Prix du projet : Maison avec Terrain

prix 357 800 €

  • 6 pièces
  • 4 chambres
  • Surface maison 115 m2

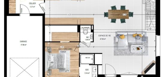
Maison T6 (115 m²) à vendre à Juigné-sur-Loire
MAISON 6 PIÈCES NEUVE - PROCHE D'ANGERS
À vendre : située à quelques kilomètres d'Angers, à Juigné-sur-Loire (49610), laissez vous charmer par cette maison de 6 pièces de 115 m².
Il s'agit d'une maison de 2 niveaux. Elle se divise en quatre chambres, une cuisine et deux salles de bains. Cette maison est neuve.
Le terrain du bien est de 630 m².
Il y a l'École Primaire Privée Saint Germain et l'École Primaire Publique les Deux Moulins à moins de 10 minutes à pied et une structure d'accueil pour les enfants en bas âge. Niveau transports, on trouve quatre gares à moins de 10 minutes en voiture. Il y a un tennis, un commerce, deux boucheries-charcuteries, une supérette et un bureau de poste à quelques minutes à peine.
Son prix de vente est de 357 800 €.
Contactez Roman SALAS (tél : 02-41-77-17-17) pour plus de renseignements sur le bien, sur les modalités de vente ou sur les démarches à suivre. Maisons Bernard Jambert Angers est là pour vous accompagner à toutes les étapes de votre projet.

Mentions légales

Terrain proposé par un partenaire foncier selon disponibilités et autorisation de publicité au prix de 126 000 €. Hors droit d'enregistrement et frais de notaire. Terrain + Maison proposés au prix de 357 800 € (Hors branchements et raccordements, papiers peints, peintures, revêtement de sol dans les chambres. Tarif modifiable sans préavis). Etiquette énergie : A. Différents modèles disponibles pour ce terrain. Assurances et garanties du constructeur (RC professionnelle, décennale, dommage ouvrage, garantie de remboursement de l'acompte, livraison à prix et délai convenu) : https://www.maisons-bernard-jambert.com/informations-legales/.

Contactez l'agence de Angers

02 41 77 17 17

    * Champs obligatoires

    Vos informations sont traitées par HEXAOM et transmises à un conseiller commercial qui vous contactera afin de répondre à votre demande. Les plans et images présentés sur notre site sont la propriété d’HEXAOM et ne peuvent pas être reproduits sans son accord. Pour retrouver notre politique de protection des données personnelles et exercer vos droits conformément à la « loi informatique et liberté » cliquez-ici.