Maison neuve à
Juigné-sur-Loire (49610) Référence : CP2392007_1

Prix du projet : Maison avec Terrain

prix 365 000 €

  • 5 pièces
  • 4 chambres
  • Surface maison 130 m2

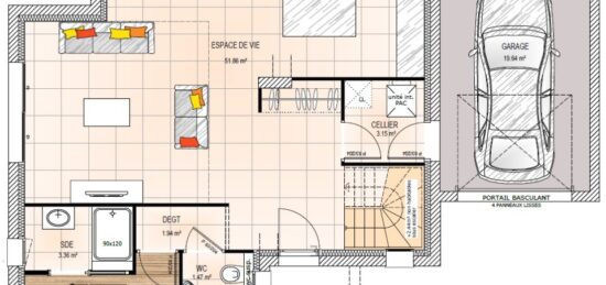
Maison F5 (130 m²) en vente à Juigné-sur-Loire
IDÉALEMENT SITUÉE - MAISON 5 PIÈCES NEUVE
En vente à quelques kilomètres d'Angers, Maisons Bernard Jambert Angers vous présente cette maison de 5 pièces de 130 m² et de 496 m² de terrain idéalement située dans Juigné-sur-Loire (49610). Elle inclut quatre chambres, une cuisine et deux salles de bains.
Il s'agit d'une maison de 2 niveaux. Elle est neuve.
La maison est située dans un secteur recherché. Il y a l'École Primaire Privée Saint Germain et l'École Primaire Publique les Deux Moulins à moins de 10 minutes à pied et une crèche. Côté transports, on trouve quatre gares à moins de 10 minutes en voiture. Les autoroutes A87N et A87 sont accessibles à moins de 4 km. Il y a un tennis, deux commerces, une boulangerie, une boucherie-charcuterie et un bureau de poste à proximité.
Son prix de vente est de 365 000 €.
Prenez contact avec Carole PORCHER (tél : 06-88-98-52-77) pour tout renseignement sur le bien, sur les démarches à suivre ou sur les modalités de vente. Maisons Bernard Jambert Angers est là pour vous accompagner dans tous vos projets immobiliers.

Mentions légales

Terrain proposé par un partenaire foncier selon disponibilités et autorisation de publicité au prix de 89 000 €. Hors droit d'enregistrement et frais de notaire. Terrain + Maison proposés au prix de 365 000 € (Hors branchements et raccordements, papiers peints, peintures, revêtement de sol dans les chambres. Tarif modifiable sans préavis). Etiquette énergie : A. Différents modèles disponibles pour ce terrain. Assurances et garanties du constructeur (RC professionnelle, décennale, dommage ouvrage, garantie de remboursement de l'acompte, livraison à prix et délai convenu) : https://www.maisons-bernard-jambert.com/informations-legales/.

Contactez l'agence de Angers

02 41 77 17 17

    * Champs obligatoires

    Vos informations sont traitées par HEXAOM et transmises à un conseiller commercial qui vous contactera afin de répondre à votre demande. Les plans et images présentés sur notre site sont la propriété d’HEXAOM et ne peuvent pas être reproduits sans son accord. Pour retrouver notre politique de protection des données personnelles et exercer vos droits conformément à la « loi informatique et liberté » cliquez-ici.