Maison neuve à
Jarzé (49140) Référence : RS2451571_2

Prix du projet : Maison avec Terrain

prix 234 200 €

  • 5 pièces
  • 3 chambres
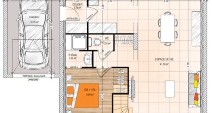
  • Surface maison 85 m2

Maison T5 (85 m²) en vente à Jarzé
MAISON 5 PIÈCES NEUVE - PROCHE D'ANGERS
En vente : localisée à deux pas d'Angers, nous sommes ravis de vous proposer cette maison de 5 pièces de 85 m² et de 467 m² de terrain à Jarzé (49140). Son intérieur comporte trois chambres, une cuisine et deux salles de bains.
Il s'agit d'une maison de 2 niveaux. Elle est neuve.
Il y a l'École Primaire Publique le Grand Noyer et l'École Primaire Privée Saint Jean à moins de 10 minutes à pied. On trouve un tennis, une bibliothèque, une boucherie-charcuterie et une épicerie dans les environs.
Son prix de vente est de 234 200 €.
Contactez notre agence (SALAS Roman : 02-41-77-17-17) pour tout renseignement sur la maison, sur les démarches à suivre ou sur les modalités de vente.

Mentions légales

Terrain proposé par un partenaire foncier selon disponibilités et autorisation de publicité au prix de 47 634 €. Hors droit d'enregistrement et frais de notaire. Terrain + Maison proposés au prix de 234 200 € (Hors branchements et raccordements, papiers peints, peintures, revêtement de sol dans les chambres. Tarif modifiable sans préavis). Etiquette énergie : A. Différents modèles disponibles pour ce terrain. Assurances et garanties du constructeur (RC professionnelle, décennale, dommage ouvrage, garantie de remboursement de l'acompte, livraison à prix et délai convenu) : https://www.maisons-bernard-jambert.com/informations-legales/.

Contactez l'agence de Angers

02 41 77 17 17

    * Champs obligatoires

    Vos informations sont traitées par HEXAOM et transmises à un conseiller commercial qui vous contactera afin de répondre à votre demande. Les plans et images présentés sur notre site sont la propriété d’HEXAOM et ne peuvent pas être reproduits sans son accord. Pour retrouver notre politique de protection des données personnelles et exercer vos droits conformément à la « loi informatique et liberté » cliquez-ici.