Maison neuve à
Jarzé (49140) Référence : RS2434270_3

Prix du projet : Maison avec Terrain

prix 229 800 €

  • 5 pièces
  • 3 chambres
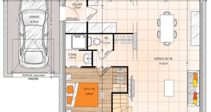
  • Surface maison 85 m2

Jarzé : maison de 5 pièces (85 m²) à vendre
PROCHE D'ANGERS - MAISON 5 PIÈCES NEUVE
À vendre : à deux pas d'Angers, à Jarzé (49140), votre agence Maisons Bernard Jambert Angers est heureuse de vous proposer cette maison de 5 pièces de 85 m² et de 564 m² de terrain. Son intérieur offre trois chambres, une cuisine et deux salles de bains.
Cette maison comporte 2 niveaux. Elle est neuve.
L'École Primaire Publique le Grand Noyer et l'École Primaire Privée Saint Jean se trouvent à moins de 10 minutes à pied. Les autoroutes A11 et A85 sont accessibles à moins de 8 km. Il y a un tennis, une bibliothèque, un commerce, deux boulangeries, une épicerie et une boucherie-charcuterie dans les environs.
Son prix de vente est de 229 800 €.
Prenez contact avec notre agence (SALAS Roman : 02-41-77-17-17) pour plus de renseignements sur la maison. Maisons Bernard Jambert Angers est là pour vous accompagner à toutes les étapes de votre projet.

Mentions légales

Terrain proposé par un partenaire foncier selon disponibilités et autorisation de publicité au prix de 57 528 €. Hors droit d'enregistrement et frais de notaire. Terrain + Maison proposés au prix de 229 800 € (Hors branchements et raccordements, papiers peints, peintures, revêtement de sol dans les chambres. Tarif modifiable sans préavis). Etiquette énergie : A. Différents modèles disponibles pour ce terrain. Assurances et garanties du constructeur (RC professionnelle, décennale, dommage ouvrage, garantie de remboursement de l'acompte, livraison à prix et délai convenu) : https://www.maisons-bernard-jambert.com/informations-legales/.

Contactez l'agence de Angers

02 41 77 17 17

    * Champs obligatoires

    Vos informations sont traitées par HEXAOM et transmises à un conseiller commercial qui vous contactera afin de répondre à votre demande. Les plans et images présentés sur notre site sont la propriété d’HEXAOM et ne peuvent pas être reproduits sans son accord. Pour retrouver notre politique de protection des données personnelles et exercer vos droits conformément à la « loi informatique et liberté » cliquez-ici.