Maison neuve à
Jarzé (49140) Référence : RS2397894_3

Prix du projet : Maison avec Terrain

prix 221 300 €

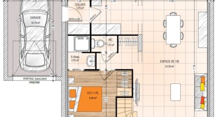
  • 5 pièces
  • 3 chambres
  • Surface maison 85 m2

VENTE d'une maison T5 (85 m²) à Jarzé
PROCHE D'ANGERS - MAISON 5 PIÈCES NEUVE
À vendre : à 25 km d'Angers, nous sommes heureux de vous proposer cette maison de 5 pièces de 85 m² à Jarzé (49140). Son intérieur offre trois chambres, une cuisine et deux salles de bains.
Le terrain du bien est de 449 m².
Il s'agit d'une maison de 2 niveaux. Elle est neuve.
Il y a l'École Primaire Publique le Grand Noyer et l'École Primaire Privée Saint Jean à moins de 10 minutes à pied. Les autoroutes A11 et A85 sont accessibles à moins de 8 km. On trouve un tennis, une bibliothèque, un commerce, deux boulangeries, une boucherie-charcuterie et une épicerie dans les environs.
Elle est proposée à l'achat pour 221 300 €.
Contactez Roman SALAS (02-41-77-17-17) pour plus de renseignements sur la maison, sur les démarches à suivre ou sur les modalités de vente. Maisons Bernard Jambert Angers vous accompagne dans tous vos projets immobiliers et dans toutes vos démarches.

Mentions légales

Terrain proposé par un partenaire foncier selon disponibilités et autorisation de publicité au prix de 45 798 €. Hors droit d'enregistrement et frais de notaire. Terrain + Maison proposés au prix de 221 300 € (Hors branchements et raccordements, papiers peints, peintures, revêtement de sol dans les chambres. Tarif modifiable sans préavis). Etiquette énergie : A. Différents modèles disponibles pour ce terrain. Assurances et garanties du constructeur (RC professionnelle, décennale, dommage ouvrage, garantie de remboursement de l'acompte, livraison à prix et délai convenu) : https://www.maisons-bernard-jambert.com/informations-legales/.

Contactez l'agence de Angers

02 41 77 17 17

    * Champs obligatoires

    Vos informations sont traitées par HEXAOM et transmises à un conseiller commercial qui vous contactera afin de répondre à votre demande. Les plans et images présentés sur notre site sont la propriété d’HEXAOM et ne peuvent pas être reproduits sans son accord. Pour retrouver notre politique de protection des données personnelles et exercer vos droits conformément à la « loi informatique et liberté » cliquez-ici.