Maison neuve à
Jarzé (49140) Référence : RS2320366_3

Prix du projet : Maison avec Terrain

prix 247 500 €

  • 4 pièces
  • 4 chambres
  • Surface maison 95 m2

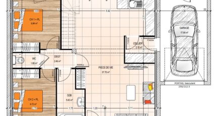
VENTE : maison F4 (95 m²) à Jarzé
PROCHE D'ANGERS - MAISON 4 PIÈCES NEUVE
À 25 km d'Angers, notre agence Maisons Bernard Jambert Angers est heureuse de vous présenter cette maison de 4 pièces de plain-pied de 95 m² à vendre à Jarzé (49140). Conçue de plain-pied, elle offre quatre chambres, une cuisine et deux salles de bains.
Le terrain du bien s'étend sur 564 m².
Cette maison est neuve.
L'École Primaire Publique le Grand Noyer et l'École Primaire Privée Saint Jean se trouvent à moins de 10 minutes à pied. Les autoroutes A11 et A85 sont accessibles à moins de 8 km. Il y a un tennis, une bibliothèque, un commerce, deux boulangeries, une épicerie et une boucherie-charcuterie à proximité de la maison.
Son prix de vente est de 247 500 €.
N'hésitez pas à prendre contact avec notre constructeur (Roman SALAS : 02-41-77-17-17) pour tout renseignement sur la maison, sur les démarches à suivre ou sur les modalités de vente. Faites de vos projets immobiliers une réalité avec Maisons Bernard Jambert Angers.

Mentions légales

Terrain proposé par un partenaire foncier selon disponibilités et autorisation de publicité au prix de 57 528 €. Hors droit d'enregistrement et frais de notaire. Maison proposée, avec un contrat de construction de maison individuelle, dans le cadre de la loi du 19/12/1990, au prix de 189 972 € (Hors branchements et raccordements, papiers peints, peintures, revêtement de sol dans les chambres, qui sont chiffrés dans les travaux qui restent à charge du client. Tarif modifiable sans préavis). Étiquette énergie : A. Différents modèles disponibles pour ce terrain. Assurances et garanties du constructeur comprises (RC professionnelle, décennale, dommage ouvrage).

Contactez l'agence de Angers

02 41 77 17 17

    * Champs obligatoires

    Vos informations sont traitées par HEXAOM et transmises à un conseiller commercial qui vous contactera afin de répondre à votre demande. Les plans et images présentés sur notre site sont la propriété d’HEXAOM et ne peuvent pas être reproduits sans son accord. Pour retrouver notre politique de protection des données personnelles et exercer vos droits conformément à la « loi informatique et liberté » cliquez-ici.