Maison neuve à
Gesté (49600) Référence : MJ2355217_4

Prix du projet : Maison avec Terrain

prix 352 500 €

  • 6 pièces
  • 4 chambres
  • Surface maison 149 m2

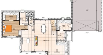
Maison T6 (149 m²) en vente à Gesté
IDÉALEMENT SITUÉE - MAISON 6 PIÈCES NEUVE
À vendre à quelques kilomètres de Cholet, idéalement située dans Gesté (49600), notre agence Maisons Bernard Jambert Angers est ravie de vous proposer cette maison de 6 pièces de 149 m² et de 389 m² de terrain. Elle est composée de quatre chambres, d'une cuisine et de deux salles de bains.
Cette maison possède 2 niveaux. Elle est neuve.
Ce bien est situé dans un secteur recherché. L'École Primaire Privée Eau Vive et l'École Primaire Publique M. et A. Rayneau se trouvent à moins de 10 minutes à pied. On trouve un accès à la nationale N249 à 7 km. Il y a une bibliothèque, un tennis, une boulangerie, un commerce, une supérette et une épicerie à quelques minutes à peine.
Son prix de vente est de 352 500 €.
Contactez notre constructeur (Mathieu JANNEAU : 06-01-35-24-98) pour toute question sur la maison ou sur les modalités de vente. Maisons Bernard Jambert Angers est là pour vous accompagner dans tous vos projets immobiliers.

Mentions légales

Terrain proposé par un partenaire foncier selon disponibilités et autorisation de publicité au prix de 49 208 €. Hors droit d'enregistrement et frais de notaire. Maison proposée, avec un contrat de construction de maison individuelle, dans le cadre de la loi du 19/12/1990, au prix de 303 292 € (Hors branchements et raccordements, papiers peints, peintures, revêtement de sol dans les chambres, qui sont chiffrés dans les travaux qui restent à charge du client. Tarif modifiable sans préavis). Étiquette énergie : A. Différents modèles disponibles pour ce terrain. Assurances et garanties du constructeur comprises (RC professionnelle, décennale, dommage ouvrage).

Contactez l'agence de Angers

02 41 77 17 17

    * Champs obligatoires

    Vos informations sont traitées par HEXAOM et transmises à un conseiller commercial qui vous contactera afin de répondre à votre demande. Les plans et images présentés sur notre site sont la propriété d’HEXAOM et ne peuvent pas être reproduits sans son accord. Pour retrouver notre politique de protection des données personnelles et exercer vos droits conformément à la « loi informatique et liberté » cliquez-ici.