Maison neuve à
Gesté (49600) Référence : MJ2355217_3

Prix du projet : Maison avec Terrain

prix 265 500 €

  • 5 pièces
  • 3 chambres
  • Surface maison 105 m2

VENTE : maison de 5 pièces (105 m²) à Gesté
IDÉALEMENT SITUÉE - MAISON 5 PIÈCES NEUVE
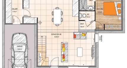
En vente : située à 25 km de Cholet, idéalement située dans Gesté (49600), laissez vous charmer par cette maison de 5 pièces de 105 m² et de 389 m² de terrain. Elle compte trois chambres, une cuisine et deux salles de bains.
C'est une maison de 2 niveaux. Elle est neuve.
La maison se trouve dans un secteur prisé. L'École Primaire Privée Eau Vive et l'École Primaire Publique M. et A. Rayneau sont implantées à moins de 10 minutes à pied. Il y a un accès à la nationale N249 à 7 km. Il y a une bibliothèque, un tennis, une boulangerie, un commerce, une supérette et une épicerie à quelques minutes.
Elle est proposée à l'achat pour 265 500 €.
Contactez Mathieu JANNEAU (tél : 06-01-35-24-98) pour tout renseignement sur le bien. Donnez vie à vos projets immobiliers avec Maisons Bernard Jambert Angers.

Mentions légales

Terrain proposé par un partenaire foncier selon disponibilités et autorisation de publicité au prix de 49 208 €. Hors droit d'enregistrement et frais de notaire. Maison proposée, avec un contrat de construction de maison individuelle, dans le cadre de la loi du 19/12/1990, au prix de 216 292 € (Hors branchements et raccordements, papiers peints, peintures, revêtement de sol dans les chambres, qui sont chiffrés dans les travaux qui restent à charge du client. Tarif modifiable sans préavis). Étiquette énergie : A. Différents modèles disponibles pour ce terrain. Assurances et garanties du constructeur comprises (RC professionnelle, décennale, dommage ouvrage).

Contactez l'agence de Angers

02 41 77 17 17

    * Champs obligatoires

    Vos informations sont traitées par HEXAOM et transmises à un conseiller commercial qui vous contactera afin de répondre à votre demande. Les plans et images présentés sur notre site sont la propriété d’HEXAOM et ne peuvent pas être reproduits sans son accord. Pour retrouver notre politique de protection des données personnelles et exercer vos droits conformément à la « loi informatique et liberté » cliquez-ici.