Maison neuve à
Feneu (49460) Référence : RS2343066_3

Prix du projet : Maison avec Terrain

prix 297 800 €

  • 6 pièces
  • 4 chambres
  • Surface maison 126 m2

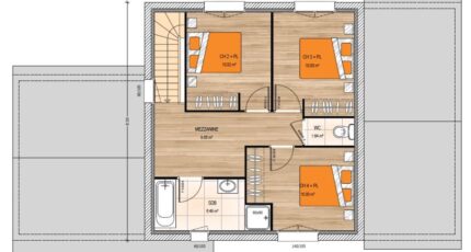
Maison de 6 pièces (126 m²) à vendre à Feneu
PROCHE D'ANGERS - MAISON 6 PIÈCES NEUVE
À vendre à 12 km d'Angers, nous sommes ravis de vous présenter cette maison de 6 pièces de 126 m² et de 283 m² de terrain à Feneu (49460). Son intérieur propose quatre chambres, une cuisine et deux salles de bains.
Cette maison compte 2 niveaux. Elle est neuve.
L'École Primaire Publique l'Eau Vive et l'École Primaire Privée Saint Dominique Savio sont implantées à moins de 10 minutes à pied. Côté transports en commun, on trouve les gares Le Vieux Briollay et Écouflant à moins de 10 minutes en voiture. On trouve un accès à l'autoroute A11 à 9 km. Il y a une boulangerie, un commerce, une boucherie-charcuterie et une épicerie dans les environs.
Son prix de vente est de 297 800 €.
Prenez contact avec Roman SALAS (tél : 02-41-77-17-17) pour tout renseignement sur la maison. Concrétisez vos projets immobiliers avec Maisons Bernard Jambert Angers.

Mentions légales

Terrain proposé par un partenaire foncier selon disponibilités et autorisation de publicité au prix de 45 000 €. Hors droit d'enregistrement et frais de notaire. Maison proposée, avec un contrat de construction de maison individuelle, dans le cadre de la loi du 19/12/1990, au prix de 252 800 € (Hors branchements et raccordements, papiers peints, peintures, revêtement de sol dans les chambres, qui sont chiffrés dans les travaux qui restent à charge du client. Tarif modifiable sans préavis). Étiquette énergie : A. Différents modèles disponibles pour ce terrain. Assurances et garanties du constructeur comprises (RC professionnelle, décennale, dommage ouvrage).

Contactez l'agence de Angers

02 41 77 17 17

    * Champs obligatoires

    Vos informations sont traitées par HEXAOM et transmises à un conseiller commercial qui vous contactera afin de répondre à votre demande. Les plans et images présentés sur notre site sont la propriété d’HEXAOM et ne peuvent pas être reproduits sans son accord. Pour retrouver notre politique de protection des données personnelles et exercer vos droits conformément à la « loi informatique et liberté » cliquez-ici.