Maison neuve à
Feneu (49460) Référence : RS2343066_2

Prix du projet : Maison avec Terrain

prix 225 400 €

  • 5 pièces
  • 3 chambres
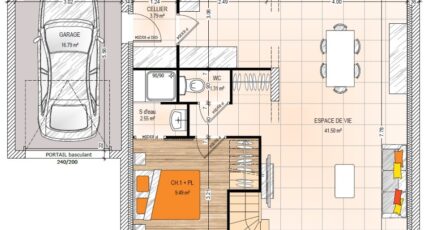
  • Surface maison 85 m2

Feneu : maison de 5 pièces (85 m²) à vendre
PROCHE D'ANGERS - MAISON 5 PIÈCES NEUVE
À vendre : à deux pas d'Angers, nous vous présentons cette maison de 5 pièces de 85 m² et de 283 m² de terrain à Feneu (49460).
Il s'agit d'une maison de 2 niveaux. Son intérieur inclut trois chambres, une cuisine et deux salles de bains. La maison est neuve.
Il y a l'École Primaire Publique l'Eau Vive et l'École Primaire Privée Saint Dominique Savio à moins de 10 minutes à pied. Côté transports en commun, on trouve deux gares (Le Vieux Briollay et Écouflant) à moins de 10 minutes en voiture. L'autoroute A11 est accessible à 9 km. Il y a une boulangerie, un commerce, une boucherie-charcuterie et une épicerie à proximité du logement.
Elle est proposée à l'achat pour 225 400 €.
N'hésitez pas à prendre contact avec notre agence (Roman SALAS : 02-41-77-17-17) pour obtenir de plus amples informations sur la maison. Maisons Bernard Jambert Angers est là pour vous accompagner à toutes les étapes de votre projet.

Mentions légales

Terrain proposé par un partenaire foncier selon disponibilités et autorisation de publicité au prix de 45 000 €. Hors droit d'enregistrement et frais de notaire. Maison proposée, avec un contrat de construction de maison individuelle, dans le cadre de la loi du 19/12/1990, au prix de 180 400 € (Hors branchements et raccordements, papiers peints, peintures, revêtement de sol dans les chambres, qui sont chiffrés dans les travaux qui restent à charge du client. Tarif modifiable sans préavis). Étiquette énergie : A. Différents modèles disponibles pour ce terrain. Assurances et garanties du constructeur comprises (RC professionnelle, décennale, dommage ouvrage).

Contactez l'agence de Angers

02 41 77 17 17

    * Champs obligatoires

    Vos informations sont traitées par HEXAOM et transmises à un conseiller commercial qui vous contactera afin de répondre à votre demande. Les plans et images présentés sur notre site sont la propriété d’HEXAOM et ne peuvent pas être reproduits sans son accord. Pour retrouver notre politique de protection des données personnelles et exercer vos droits conformément à la « loi informatique et liberté » cliquez-ici.