Maison neuve à
Feneu (49460) Référence : RS2286644_1

Prix du projet : Maison avec Terrain

prix 291 400 €

  • 5 pièces
  • 4 chambres
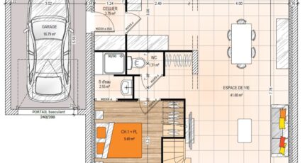
  • Surface maison 102 m2

VENTE : maison de 5 pièces (102 m²) à Feneu
MAISON 5 PIÈCES NEUVE - PROCHE D'ANGERS
À 12 km d'Angers, en vente à Feneu (49460), venez découvrir cette maison de 5 pièces de 102 m² et de 560 m² de terrain.
Il s'agit d'une maison de 2 niveaux. Son intérieur inclut quatre chambres, une cuisine et deux salles de bains. La maison est neuve.
On trouve l'École Primaire Publique l'Eau Vive et l'École Primaire Privée Saint Dominique Savio à moins de 10 minutes à pied. Niveau transports, il y a deux gares (Le Vieux Briollay et Écouflant) à moins de 10 minutes en voiture. On trouve un accès à l'autoroute A11 à 9 km. On trouve une boulangerie, un commerce, une épicerie et une boucherie-charcuterie dans les environs.
Son prix de vente est de 291 400 €.
Contactez Roman SALAS (02-41-77-17-17) pour plus d'informations sur cette maison. Maisons Bernard Jambert Angers vous accompagne à toutes les étapes de l'achat et dans toutes vos démarches.

Mentions légales

Terrain proposé par un partenaire foncier selon disponibilités et autorisation de publicité au prix de 90 000 €. Hors droit d'enregistrement et frais de notaire. Terrain + Maison proposés au prix de 201 400 € (Hors branchements et raccordements, papiers peints, peintures, revêtement de sol dans les chambres. Tarif modifiable sans préavis). Etiquette énergie : A. Différents modèles disponibles pour ce terrain. Assurances et garanties du constructeur (RC professionnelle, décennale, dommage ouvrage, garantie de remboursement de l'acompte, livraison à prix et délai convenu) : https://www.maisons-bernard-jambert.com/informations-legales/.

Contactez l'agence de Angers

02 41 77 17 17

    * Champs obligatoires

    Vos informations sont traitées par HEXAOM et transmises à un conseiller commercial qui vous contactera afin de répondre à votre demande. Les plans et images présentés sur notre site sont la propriété d’HEXAOM et ne peuvent pas être reproduits sans son accord. Pour retrouver notre politique de protection des données personnelles et exercer vos droits conformément à la « loi informatique et liberté » cliquez-ici.