Maison neuve à
Doué-la-Fontaine (49700) Référence : CP2331101_4

Prix du projet : Maison avec Terrain

prix 232 100 €

  • 5 pièces
  • 3 chambres
  • Surface maison 85 m2

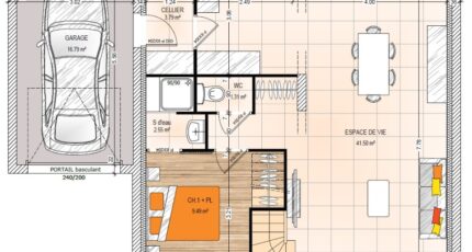
VENTE : maison de 5 pièces (85 m²) à Doué-la-Fontaine
CENTRE-VILLE - MAISON 5 PIÈCES NEUVE
À vendre : à 17 km de Saumur, venez découvrir cette maison de 5 pièces de 85 m² au coeur de Doué-la-Fontaine (49700).
C'est une maison de 2 niveaux. Elle est composée de trois chambres, d'une cuisine et de deux salles de bains. Cette maison est neuve.
Le terrain de la propriété s'étend sur 400 m².
Quatre établissements scolaires sont implantés à moins de 10 minutes à pied, tout comme une structure d'accueil pour la petite enfance. Il y a une bibliothèque, des commerces, des boulangeries, deux supermarchés, trois boucheries-charcuteries et une épicerie à quelques minutes du bien. Ne manquez pas le marché Place du Champ de foire tous les lundis matin.
Il est à vendre pour la somme de 232 100 €.
Contactez Carole PORCHER (tél : 06-88-98-52-77) pour toute question sur la maison. Maisons Bernard Jambert Angers est là pour vous accompagner dans tous vos projets immobiliers.

Mentions légales

Terrain proposé par un partenaire foncier selon disponibilités et autorisation de publicité au prix de 32 000 €. Hors droit d'enregistrement et frais de notaire. Maison proposée, avec un contrat de construction de maison individuelle, dans le cadre de la loi du 19/12/1990, au prix de 200 100 € (Hors branchements et raccordements, papiers peints, peintures, revêtement de sol dans les chambres, qui sont chiffrés dans les travaux qui restent à charge du client. Tarif modifiable sans préavis). Étiquette énergie : A. Différents modèles disponibles pour ce terrain. Assurances et garanties du constructeur comprises (RC professionnelle, décennale, dommage ouvrage).

Contactez l'agence de Angers

02 41 77 17 17

    * Champs obligatoires

    Vos informations sont traitées par HEXAOM et transmises à un conseiller commercial qui vous contactera afin de répondre à votre demande. Les plans et images présentés sur notre site sont la propriété d’HEXAOM et ne peuvent pas être reproduits sans son accord. Pour retrouver notre politique de protection des données personnelles et exercer vos droits conformément à la « loi informatique et liberté » cliquez-ici.