Maison neuve à
Daumeray (49640) Référence : RS2412977_6

Prix du projet : Maison avec Terrain

prix 231 600 €

  • 5 pièces
  • 3 chambres
  • Surface maison 87 m2

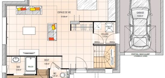
VENTE d'une maison F5 (87 m²) à Daumeray
MAISON 5 PIÈCES NEUVE - PROCHE D'ANGERS
À vendre : à 27 km d'Angers, à Daumeray (49640), nous vous proposons cette maison de 5 pièces de 87 m² et de 588 m² de terrain. Son intérieur dispose de trois chambres, d'une cuisine et d'une salle de bains.
C'est une maison de 2 niveaux. Elle est neuve.
Il y a l'École Primaire Privée Notre-Dame et l'École Primaire Publique Maurice Ludard à moins de 10 minutes à pied. Côté transports en commun, on trouve les gares Morannes et Étriché-Châteauneuf à moins de 10 minutes en voiture. On trouve un accès à l'autoroute A11 à 9 km. Il y a une boulangerie et une boucherie-charcuterie à quelques minutes.
Elle est proposée à l'achat pour 231 600 €.
N'hésitez pas à prendre contact avec Roman SALAS (02-41-77-17-17) pour toute question sur cette maison. Faites de vos projets immobiliers une réalité avec Maisons Bernard Jambert Angers.

Mentions légales

Terrain proposé par un partenaire foncier selon disponibilités et autorisation de publicité au prix de 45 500 €. Hors droit d'enregistrement et frais de notaire. Terrain + Maison proposés au prix de 231 600 € (Hors branchements et raccordements, papiers peints, peintures, revêtement de sol dans les chambres. Tarif modifiable sans préavis). Etiquette énergie : A. Différents modèles disponibles pour ce terrain. Assurances et garanties du constructeur (RC professionnelle, décennale, dommage ouvrage, garantie de remboursement de l'acompte, livraison à prix et délai convenu) : https://www.maisons-bernard-jambert.com/informations-legales/.

Contactez l'agence de Angers

02 41 77 17 17

    * Champs obligatoires

    Vos informations sont traitées par HEXAOM et transmises à un conseiller commercial qui vous contactera afin de répondre à votre demande. Les plans et images présentés sur notre site sont la propriété d’HEXAOM et ne peuvent pas être reproduits sans son accord. Pour retrouver notre politique de protection des données personnelles et exercer vos droits conformément à la « loi informatique et liberté » cliquez-ici.