Maison neuve à
Daumeray (49640) Référence : RS2401473_4

Prix du projet : Maison avec Terrain

prix 199 800 €

  • 5 pièces
  • 3 chambres
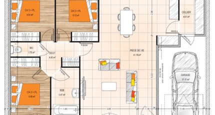
  • Surface maison 85 m2

Maison T5 (85 m²) à vendre à Daumeray
PROCHE D'ANGERS - MAISON 5 PIÈCES NEUVE
À vendre : située à quelques kilomètres d'Angers, votre agence Maisons Bernard Jambert Angers est heureuse de vous proposer cette maison de 5 pièces de plain-pied de 85 m² et de 463 m² de terrain à Daumeray (49640).
Conçue de plain-pied, elle dispose de trois chambres, d'une cuisine et d'une salle de bains. La maison est neuve.
Il y a l'École Primaire Privée Notre-Dame et l'École Primaire Publique Maurice Ludard à moins de 10 minutes à pied. Côté transports, on trouve les gares Morannes et Étriché-Châteauneuf à moins de 10 minutes en voiture. Il y a un accès à l'autoroute A11 à 9 km. Il y a une boulangerie et une boucherie-charcuterie à proximité.
Elle est proposée à l'achat pour 199 800 €.
Prenez contact avec Roman SALAS (tél : 02-41-77-17-17) pour tout renseignement sur la propriété, sur les démarches à suivre ou sur les modalités de vente. Maisons Bernard Jambert Angers est là pour vous accompagner à toutes les étapes de votre projet.

Mentions légales

Terrain proposé par un partenaire foncier selon disponibilités et autorisation de publicité au prix de 35 836 €. Hors droit d'enregistrement et frais de notaire. Terrain + Maison proposés au prix de 199 800 € (Hors branchements et raccordements, papiers peints, peintures, revêtement de sol dans les chambres. Tarif modifiable sans préavis). Etiquette énergie : A. Différents modèles disponibles pour ce terrain. Assurances et garanties du constructeur (RC professionnelle, décennale, dommage ouvrage, garantie de remboursement de l'acompte, livraison à prix et délai convenu) : https://www.maisons-bernard-jambert.com/informations-legales/.

Contactez l'agence de Angers

02 41 77 17 17

    * Champs obligatoires

    Vos informations sont traitées par HEXAOM et transmises à un conseiller commercial qui vous contactera afin de répondre à votre demande. Les plans et images présentés sur notre site sont la propriété d’HEXAOM et ne peuvent pas être reproduits sans son accord. Pour retrouver notre politique de protection des données personnelles et exercer vos droits conformément à la « loi informatique et liberté » cliquez-ici.