Maison neuve à
Daumeray (49640) Référence : RS2372466_3

Prix du projet : Maison avec Terrain

prix 228 950 €

  • 5 pièces
  • 3 chambres
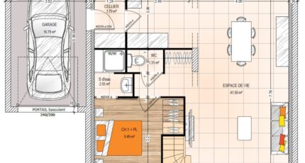
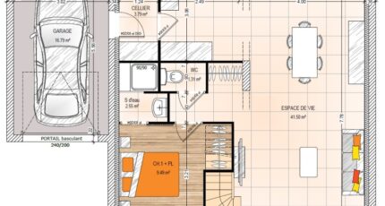
  • Surface maison 85 m2

Daumeray : maison de 5 pièces (85 m²) à vendre
MAISON 5 PIÈCES NEUVE - PROCHE D'ANGERS
En vente : à 27 km d'Angers, notre agence Maisons Bernard Jambert Angers est heureuse de vous présenter cette maison de 5 pièces de 85 m² et de 497 m² de terrain à Daumeray (49640).
C'est une maison de 2 niveaux. Elle se divise en trois chambres, une cuisine et deux salles de bains. Cette maison est neuve.
L'École Primaire Privée Notre-Dame et l'École Primaire Publique Maurice Ludard sont implantées à moins de 10 minutes à pied. Côté transports en commun, on trouve les gares Morannes et Étriché-Châteauneuf à moins de 10 minutes en voiture. L'autoroute A11 est accessible à 9 km. Il y a une boulangerie et une boucherie-charcuterie à quelques minutes à peine.
Elle est proposée à l'achat pour 228 950 €.
N'hésitez pas à prendre contact avec Roman SALAS (tél : 02-41-77-17-17) pour tout renseignement sur la maison.

Mentions légales

Terrain proposé par un partenaire foncier selon disponibilités et autorisation de publicité au prix de 38 450 €. Hors droit d'enregistrement et frais de notaire. Terrain + Maison proposés au prix de 190 500 € (Hors branchements et raccordements, papiers peints, peintures, revêtement de sol dans les chambres. Tarif modifiable sans préavis). Etiquette énergie : A. Différents modèles disponibles pour ce terrain. Assurances et garanties du constructeur (RC professionnelle, décennale, dommage ouvrage, garantie de remboursement de l'acompte, livraison à prix et délai convenu) : https://www.maisons-bernard-jambert.com/informations-legales/.

Contactez l'agence de Angers

02 41 77 17 17

    * Champs obligatoires

    Vos informations sont traitées par HEXAOM et transmises à un conseiller commercial qui vous contactera afin de répondre à votre demande. Les plans et images présentés sur notre site sont la propriété d’HEXAOM et ne peuvent pas être reproduits sans son accord. Pour retrouver notre politique de protection des données personnelles et exercer vos droits conformément à la « loi informatique et liberté » cliquez-ici.