Maison neuve à
Daumeray (49640) Référence : RS2349343_2

Prix du projet : Maison avec Terrain

prix 199 800 €

  • 5 pièces
  • 3 chambres
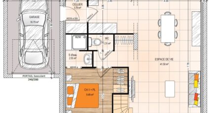
  • Surface maison 85 m2

VENTE d'une maison T5 (85 m²) à Daumeray
MAISON 5 PIÈCES NEUVE - PROCHE D'ANGERS
En vente : localisée à 27 km d'Angers, nous vous présentons à Daumeray (49640), cette maison de 5 pièces de 85 m². Elle dispose de trois chambres, d'une cuisine et de deux salles de bains.
Le terrain du bien est de 358 m².
Il s'agit d'une maison de 2 niveaux. Elle est neuve.
L'École Primaire Privée Notre-Dame et l'École Primaire Publique Maurice Ludard sont implantées à moins de 10 minutes à pied. Niveau transports, il y a deux gares (Morannes et Étriché-Châteauneuf) à moins de 10 minutes en voiture. Il y a un accès à l'autoroute A11 à 9 km. On trouve une boulangerie et une boucherie-charcuterie à proximité.
Elle est à vendre pour la somme de 199 800 €.
Contactez Roman SALAS (tél : 02-41-77-17-17) pour obtenir de plus amples informations sur la maison, sur les modalités de vente ou sur les démarches à suivre. Concrétisez vos projets immobiliers avec Maisons Bernard Jambert Angers.

Mentions légales

Terrain proposé par un partenaire foncier selon disponibilités et autorisation de publicité au prix de 27 700 €. Hors droit d'enregistrement et frais de notaire. Maison proposée, avec un contrat de construction de maison individuelle, dans le cadre de la loi du 19/12/1990, au prix de 172 100 € (Hors branchements et raccordements, papiers peints, peintures, revêtement de sol dans les chambres, qui sont chiffrés dans les travaux qui restent à charge du client. Tarif modifiable sans préavis). Étiquette énergie : A. Différents modèles disponibles pour ce terrain. Assurances et garanties du constructeur comprises (RC professionnelle, décennale, dommage ouvrage).

Contactez l'agence de Angers

02 41 77 17 17

    * Champs obligatoires

    Vos informations sont traitées par HEXAOM et transmises à un conseiller commercial qui vous contactera afin de répondre à votre demande. Les plans et images présentés sur notre site sont la propriété d’HEXAOM et ne peuvent pas être reproduits sans son accord. Pour retrouver notre politique de protection des données personnelles et exercer vos droits conformément à la « loi informatique et liberté » cliquez-ici.