Maison neuve à
Daumeray (49640) Référence : CP2321772_2

Prix du projet : Maison avec Terrain

prix 325 600 €

  • 7 pièces
  • 4 chambres
  • Surface maison 160 m2

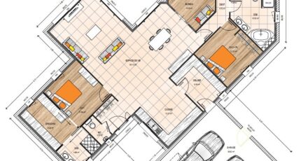
Daumeray : maison F7 (160 m²) à vendre
IDÉALEMENT SITUÉE - MAISON 7 PIÈCES NEUVE
À vendre : située à quelques kilomètres d'Angers, notre agence Maisons Bernard Jambert Angers est heureuse de vous présenter cette maison de 7 pièces de plain-pied de 160 m² et de 330 m² de terrain, idéalement située dans Daumeray (49640). Conçue de plain-pied, elle compte quatre chambres, une cuisine et deux salles de bains.
Cette maison est neuve.
La maison se situe dans un secteur prisé. L'École Primaire Privée Notre-Dame et l'École Primaire Publique Maurice Ludard sont implantées à moins de 10 minutes à pied. Côté transports en commun, il y a les gares Morannes et Étriché-Châteauneuf à moins de 10 minutes en voiture. L'autoroute A11 est accessible à 9 km. On trouve une boulangerie et une boucherie-charcuterie dans les environs.
Elle est à vendre pour la somme de 325 600 €.
Contactez Carole PORCHER (06-88-98-52-77) pour toute information sur la maison. Maisons Bernard Jambert Angers vous accompagne dans toutes vos démarches et à toutes les étapes de votre projet.

Mentions légales

Terrain proposé par un partenaire foncier selon disponibilités et autorisation de publicité au prix de 25 542 €. Hors droit d'enregistrement et frais de notaire. Maison proposée, avec un contrat de construction de maison individuelle, dans le cadre de la loi du 19/12/1990, au prix de 300 058 € (Hors branchements et raccordements, papiers peints, peintures, revêtement de sol dans les chambres, qui sont chiffrés dans les travaux qui restent à charge du client. Tarif modifiable sans préavis). Étiquette énergie : A. Différents modèles disponibles pour ce terrain. Assurances et garanties du constructeur comprises (RC professionnelle, décennale, dommage ouvrage).

Contactez l'agence de Angers

02 41 77 17 17

    * Champs obligatoires

    Vos informations sont traitées par HEXAOM et transmises à un conseiller commercial qui vous contactera afin de répondre à votre demande. Les plans et images présentés sur notre site sont la propriété d’HEXAOM et ne peuvent pas être reproduits sans son accord. Pour retrouver notre politique de protection des données personnelles et exercer vos droits conformément à la « loi informatique et liberté » cliquez-ici.