Maison neuve à
Corné (49630) Référence : RS2370956_1

Prix du projet : Maison avec Terrain

prix 267 500 €

  • 5 pièces
  • 3 chambres
  • Surface maison 85 m2

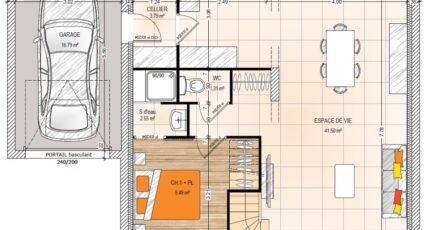
Maison de 5 pièces (85 m²) à vendre à Corné
MAISON 5 PIÈCES NEUVE - PROCHE D'ANGERS
À quelques kilomètres d'Angers, nous sommes heureux de vous proposer à vendre à Corné (49630), cette maison de 5 pièces de 85 m² et de 434 m² de terrain.
Il s'agit d'une maison de 2 niveaux. Elle est composée de trois chambres, d'une cuisine et de deux salles de bains. Cette maison est neuve.
On trouve tous les types d'écoles (maternelle, élémentaire et secondaire) à moins de 10 minutes en voiture, tout comme cinq structures d'accueil pour les enfants en bas âge à moins de 10 minutes à pied. Niveau transports, il y a trois gares (Saint-Mathurin-sur-Loire, La Bohalle et La Ménitré) à moins de 10 minutes en voiture. L'autoroute A85 est accessible à 9 km. On trouve deux bassins de natation, des bibliothèques, des tennis, un port de plaisance, des boulangeries, des commerces, quatre supermarchés, des boucheries-charcuteries et des bureaux de poste dans les environs. Enfin, le marché Place Jeanne Laval a lieu tous les mercredis matin.
Elle est à vendre pour la somme de 267 500 €.
N'hésitez pas à prendre contact avec notre agence (Roman SALAS : 02-41-77-17-17) pour obtenir de plus amples renseignements sur la maison. Maisons Bernard Jambert Angers est là pour vous accompagner dans toutes vos démarches.

Mentions légales

Terrain proposé par un partenaire foncier selon disponibilités et autorisation de publicité au prix de 73 800 €. Hors droit d'enregistrement et frais de notaire. Terrain + Maison proposés au prix de 193 700 € (Hors branchements et raccordements, papiers peints, peintures, revêtement de sol dans les chambres. Tarif modifiable sans préavis). Etiquette énergie : A. Différents modèles disponibles pour ce terrain. Assurances et garanties du constructeur (RC professionnelle, décennale, dommage ouvrage, garantie de remboursement de l'acompte, livraison à prix et délai convenu) : https://www.maisons-bernard-jambert.com/informations-legales/.

Contactez l'agence de Angers

02 41 77 17 17

    * Champs obligatoires

    Vos informations sont traitées par HEXAOM et transmises à un conseiller commercial qui vous contactera afin de répondre à votre demande. Les plans et images présentés sur notre site sont la propriété d’HEXAOM et ne peuvent pas être reproduits sans son accord. Pour retrouver notre politique de protection des données personnelles et exercer vos droits conformément à la « loi informatique et liberté » cliquez-ici.