Maison neuve à
Corné (49630) Référence : RS2354269_3

Prix du projet : Maison avec Terrain

prix 277 500 €

  • 5 pièces
  • 3 chambres
  • Surface maison 85 m2

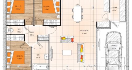
Maison de 5 pièces (85 m²) à vendre à Corné
PROCHE D'ANGERS - MAISON 5 PIÈCES NEUVE
À vendre à deux pas d'Angers, Maisons Bernard Jambert Angers vous présente cette maison de 5 pièces de plain-pied de 85 m² et de 434 m² de terrain à Corné (49630). Son intérieur propose trois chambres, une cuisine et une salle de bains.
La maison est neuve.
Il y a des écoles du primaire et du secondaire à moins de 10 minutes en voiture, tout comme cinq structures d'accueil pour les enfants en bas âge à moins de 10 minutes à pied. Côté transports, on trouve les gares Saint-Mathurin-sur-Loire, La Bohalle et La Ménitré à moins de 10 minutes en voiture. On trouve un accès à l'autoroute A85 à 9 km. Il y a deux bassins de natation, des bibliothèques, des tennis, un port de plaisance, des boulangeries, des commerces, quatre supermarchés, des bureaux de poste et des boucheries-charcuteries dans les environs. Le marché Place Jeanne Laval anime le quartier tous les mercredis matin.
Elle est proposée à l'achat pour 277 500 €.
Prenez contact avec Roman SALAS (tél : 02-41-77-17-17) pour plus de renseignements sur la maison, sur les démarches à suivre ou sur les modalités de vente.

Mentions légales

Terrain proposé par un partenaire foncier selon disponibilités et autorisation de publicité au prix de 73 800 €. Hors droit d'enregistrement et frais de notaire. Maison proposée, avec un contrat de construction de maison individuelle, dans le cadre de la loi du 19/12/1990, au prix de 203 700 € (Hors branchements et raccordements, papiers peints, peintures, revêtement de sol dans les chambres, qui sont chiffrés dans les travaux qui restent à charge du client. Tarif modifiable sans préavis). Étiquette énergie : A. Différents modèles disponibles pour ce terrain. Assurances et garanties du constructeur comprises (RC professionnelle, décennale, dommage ouvrage).

Contactez l'agence de Angers

02 41 77 17 17

    * Champs obligatoires

    Vos informations sont traitées par HEXAOM et transmises à un conseiller commercial qui vous contactera afin de répondre à votre demande. Les plans et images présentés sur notre site sont la propriété d’HEXAOM et ne peuvent pas être reproduits sans son accord. Pour retrouver notre politique de protection des données personnelles et exercer vos droits conformément à la « loi informatique et liberté » cliquez-ici.