Maison neuve à
Corné (49630) Référence : RS2354269_1

Prix du projet : Maison avec Terrain

prix 268 100 €

  • 5 pièces
  • 3 chambres
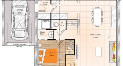
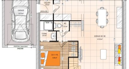
  • Surface maison 85 m2

VENTE : maison de 5 pièces (85 m²) à Corné
PROCHE D'ANGERS - MAISON 5 PIÈCES NEUVE
En vente à quelques kilomètres d'Angers, nous sommes heureux de vous présenter cette maison de 5 pièces de 85 m² et de 434 m² de terrain à Corné (49630). Son intérieur est composé de trois chambres, d'une cuisine et de deux salles de bains.
Cette maison comporte 2 niveaux. Elle est neuve.
Des écoles de tous types (de la maternelle au lycée) sont implantées à moins de 10 minutes en voiture, tout comme cinq structures d'accueil pour les tout-petits à moins de 10 minutes à pied. Côté transports en commun, on trouve les gares Saint-Mathurin-sur-Loire, La Bohalle et La Ménitré à moins de 10 minutes en voiture. On trouve un accès à l'autoroute A85 à 9 km. Il y a deux bassins de natation, des bibliothèques, des tennis, un port de plaisance, des boulangeries, des commerces, quatre supermarchés, trois supérettes et des épiceries à quelques minutes du logement. Enfin, le marché Place Jeanne Laval a lieu tous les mercredis matin.
Elle est à vendre pour la somme de 268 100 €.
Contactez Roman SALAS (tél : 02-41-77-17-17) pour tout renseignement sur cette maison.

Mentions légales

Terrain proposé par un partenaire foncier selon disponibilités et autorisation de publicité au prix de 73 800 €. Hors droit d'enregistrement et frais de notaire. Maison proposée, avec un contrat de construction de maison individuelle, dans le cadre de la loi du 19/12/1990, au prix de 194 300 € (Hors branchements et raccordements, papiers peints, peintures, revêtement de sol dans les chambres, qui sont chiffrés dans les travaux qui restent à charge du client. Tarif modifiable sans préavis). Étiquette énergie : A. Différents modèles disponibles pour ce terrain. Assurances et garanties du constructeur comprises (RC professionnelle, décennale, dommage ouvrage).

Contactez l'agence de Angers

02 41 77 17 17

    * Champs obligatoires

    Vos informations sont traitées par HEXAOM et transmises à un conseiller commercial qui vous contactera afin de répondre à votre demande. Les plans et images présentés sur notre site sont la propriété d’HEXAOM et ne peuvent pas être reproduits sans son accord. Pour retrouver notre politique de protection des données personnelles et exercer vos droits conformément à la « loi informatique et liberté » cliquez-ici.