Maison neuve à
Châteauneuf-sur-Sarthe (49330) Référence : RS2416695_1

Prix du projet : Maison avec Terrain

prix 231 500 €

  • 5 pièces
  • 3 chambres
  • Surface maison 85 m2

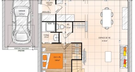
VENTE : maison de 5 pièces (85 m²) à Châteauneuf-sur-Sarthe
PROCHE D'ANGERS - MAISON 5 PIÈCES NEUVE
En vente : à deux pas d'Angers, votre agence Maisons Bernard Jambert Angers est heureuse de vous proposer à Châteauneuf-sur-Sarthe (49330), cette maison de 5 pièces de 85 m² et de 351 m² de terrain.
Cette maison compte 2 niveaux. Son intérieur dispose de trois chambres, d'une cuisine et de deux salles de bains. La maison est neuve.
Il y a l'École Primaire Privée Saint Joseph à moins de 10 minutes à pied et une crèche. Niveau transports, on trouve trois gares (Étriché-Châteauneuf, Tiercé et Morannes) à moins de 10 minutes en voiture. Les autoroutes A11, A85 et A87N sont accessibles à moins de 20 km. Il y a un bassin de natation, une bibliothèque, un tennis, des commerces, une boulangerie, un supermarché, un bureau de poste et une supérette à quelques minutes à peine. Ne manquez pas le marché Place Robert le Fort tous les vendredis matin.
Son prix de vente est de 231 500 €.
Contactez Roman SALAS (tél : 02-41-77-17-17) pour toute question sur cette maison. Donnez vie à vos projets immobiliers avec Maisons Bernard Jambert Angers.

Mentions légales

Terrain proposé par un partenaire foncier selon disponibilités et autorisation de publicité au prix de 41 000 €. Hors droit d'enregistrement et frais de notaire. Terrain + Maison proposés au prix de 231 500 € (Hors branchements et raccordements, papiers peints, peintures, revêtement de sol dans les chambres. Tarif modifiable sans préavis). Etiquette énergie : A. Différents modèles disponibles pour ce terrain. Assurances et garanties du constructeur (RC professionnelle, décennale, dommage ouvrage, garantie de remboursement de l'acompte, livraison à prix et délai convenu) : https://www.maisons-bernard-jambert.com/informations-legales/.

Contactez l'agence de Angers

02 41 77 17 17

    * Champs obligatoires

    Vos informations sont traitées par HEXAOM et transmises à un conseiller commercial qui vous contactera afin de répondre à votre demande. Les plans et images présentés sur notre site sont la propriété d’HEXAOM et ne peuvent pas être reproduits sans son accord. Pour retrouver notre politique de protection des données personnelles et exercer vos droits conformément à la « loi informatique et liberté » cliquez-ici.