Maison neuve à
Champigné (49330) Référence : RS2343036_4

Prix du projet : Maison avec Terrain

prix 203 600 €

  • 5 pièces
  • 3 chambres
  • Surface maison 85 m2

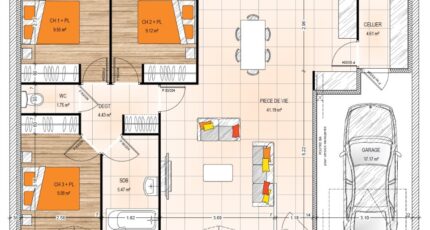
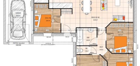
VENTE : maison de 5 pièces (85 m²) à Champigné
PROCHE D'ANGERS - MAISON 5 PIÈCES NEUVE
À deux pas d'Angers, à vendre à Champigné (49330), votre agence Maisons Bernard Jambert Angers est ravie de vous proposer cette maison de 5 pièces de plain-pied de 85 m². Elle comporte trois chambres, une cuisine et une salle de bains.
Le terrain du bien s'étend sur 391 m².
Cette maison est neuve.
L'École Primaire Privée Saint François-Xavier, le Collège Privé Saint François et le Collège Jacques Prévert sont implantés à moins de 10 minutes à pied, tout comme une crèche. Côté transports, on trouve les gares Étriché-Châteauneuf et Tiercé à moins de 10 minutes en voiture. Les autoroutes A11 et A87N et la nationale N162 sont accessibles à moins de 20 km. Il y a une bibliothèque, un tennis, deux commerces, une boulangerie, un supermarché et un bureau de poste à quelques minutes de la maison.
Son prix de vente est de 203 600 €.
N'hésitez pas à prendre contact avec notre constructeur (Roman SALAS : 02-41-77-17-17) pour tout renseignement sur cette maison.

Mentions légales

Terrain proposé par un partenaire foncier selon disponibilités et autorisation de publicité au prix de 38 000 €. Hors droit d'enregistrement et frais de notaire. Maison proposée, avec un contrat de construction de maison individuelle, dans le cadre de la loi du 19/12/1990, au prix de 165 600 € (Hors branchements et raccordements, papiers peints, peintures, revêtement de sol dans les chambres, qui sont chiffrés dans les travaux qui restent à charge du client. Tarif modifiable sans préavis). Étiquette énergie : A. Différents modèles disponibles pour ce terrain. Assurances et garanties du constructeur comprises (RC professionnelle, décennale, dommage ouvrage).

Contactez l'agence de Angers

02 41 77 17 17

    * Champs obligatoires

    Vos informations sont traitées par HEXAOM et transmises à un conseiller commercial qui vous contactera afin de répondre à votre demande. Les plans et images présentés sur notre site sont la propriété d’HEXAOM et ne peuvent pas être reproduits sans son accord. Pour retrouver notre politique de protection des données personnelles et exercer vos droits conformément à la « loi informatique et liberté » cliquez-ici.