Maison neuve à
Chalonnes-sur-Loire (49290) Référence : RS2451565_1

Prix du projet : Maison avec Terrain

prix 227 800 €

  • 5 pièces
  • 3 chambres
  • Surface maison 85 m2

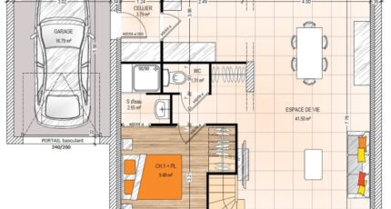
Maison T5 (85 m²) à vendre à Chalonnes-sur-Loire
PROCHE D'ANGERS - MAISON 5 PIÈCES NEUVE
À vendre : localisée à deux pas d'Angers, notre agence Maisons Bernard Jambert Angers est ravie de vous présenter à Chalonnes-sur-Loire (49290), cette maison de 5 pièces de 85 m² et de 499 m² de terrain.
Cette maison compte 2 niveaux. Son intérieur offre trois chambres, une cuisine et deux salles de bains. Cette maison est neuve.
On trouve l'École Primaire Privée Saint Joseph, l'École Élémentaire Publique Mixte 2 Joubert et l'École Maternelle Publique le Petit Prince à moins de 10 minutes à pied. Côté transports, il y a les gares Chalonnes-sur-Loire, La Possonnière et Savennières-Béhuard à moins de 10 minutes en voiture. On trouve un bassin de natation, un tennis, une bibliothèque, des commerces, un bureau de poste, quatre épiceries et deux boucheries-charcuteries à quelques minutes.
Son prix de vente est de 227 800 €.
N'hésitez pas à prendre contact avec notre agence (Roman SALAS : 02-41-77-17-17) pour plus d'informations sur la maison, sur les démarches à suivre ou sur les modalités de vente.

Mentions légales

Terrain proposé par un partenaire foncier selon disponibilités et autorisation de publicité au prix de 45 000 €. Hors droit d'enregistrement et frais de notaire. Terrain + Maison proposés au prix de 227 800 € (Hors branchements et raccordements, papiers peints, peintures, revêtement de sol dans les chambres. Tarif modifiable sans préavis). Etiquette énergie : A. Différents modèles disponibles pour ce terrain. Assurances et garanties du constructeur (RC professionnelle, décennale, dommage ouvrage, garantie de remboursement de l'acompte, livraison à prix et délai convenu) : https://www.maisons-bernard-jambert.com/informations-legales/.

Contactez l'agence de Angers

02 41 77 17 17

    * Champs obligatoires

    Vos informations sont traitées par HEXAOM et transmises à un conseiller commercial qui vous contactera afin de répondre à votre demande. Les plans et images présentés sur notre site sont la propriété d’HEXAOM et ne peuvent pas être reproduits sans son accord. Pour retrouver notre politique de protection des données personnelles et exercer vos droits conformément à la « loi informatique et liberté » cliquez-ici.