Maison neuve à
Chalonnes-sur-Loire (49290) Référence : RS2434295_2

Prix du projet : Maison avec Terrain

prix 216 500 €

  • 5 pièces
  • 3 chambres
  • Surface maison 85 m2

VENTE : maison de 5 pièces (85 m²) à Chalonnes-sur-Loire
PROCHE D'ANGERS - MAISON 5 PIÈCES NEUVE
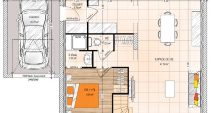
À vendre : à deux pas d'Angers, à Chalonnes-sur-Loire (49290), nous sommes heureux de vous présenter cette maison de 5 pièces de 85 m² et de 312 m² de terrain. Elle est composée de trois chambres, d'une cuisine et de deux salles de bains.
Cette maison compte 2 niveaux. Elle est neuve.
On trouve l'École Primaire Privée Saint Joseph, l'École Élémentaire Publique Mixte 2 Joubert et l'École Maternelle Publique le Petit Prince à moins de 10 minutes à pied. Côté transports en commun, il y a trois gares (Chalonnes-sur-Loire, La Possonnière et Savennières-Béhuard) à moins de 10 minutes en voiture. Il y a un accès à l'autoroute A11 à 10 km. On trouve un tennis, une bibliothèque, un bassin de natation, des commerces, des boulangeries, un supermarché, deux boucheries-charcuteries et un bureau de poste à quelques minutes à peine.
Son prix de vente est de 216 500 €.
Contactez notre agence (SALAS Roman : 02-41-77-17-17) pour plus de renseignements sur cette maison.

Mentions légales

Terrain proposé par un partenaire foncier selon disponibilités et autorisation de publicité au prix de 28 500 €. Hors droit d'enregistrement et frais de notaire. Terrain + Maison proposés au prix de 216 500 € (Hors branchements et raccordements, papiers peints, peintures, revêtement de sol dans les chambres. Tarif modifiable sans préavis). Etiquette énergie : A. Différents modèles disponibles pour ce terrain. Assurances et garanties du constructeur (RC professionnelle, décennale, dommage ouvrage, garantie de remboursement de l'acompte, livraison à prix et délai convenu) : https://www.maisons-bernard-jambert.com/informations-legales/.

Contactez l'agence de Angers

02 41 77 17 17

    * Champs obligatoires

    Vos informations sont traitées par HEXAOM et transmises à un conseiller commercial qui vous contactera afin de répondre à votre demande. Les plans et images présentés sur notre site sont la propriété d’HEXAOM et ne peuvent pas être reproduits sans son accord. Pour retrouver notre politique de protection des données personnelles et exercer vos droits conformément à la « loi informatique et liberté » cliquez-ici.