Maison neuve à
Chalonnes-sur-Loire (49290) Référence : RS2352050_4

Prix du projet : Maison avec Terrain

prix 218 900 €

  • 5 pièces
  • 3 chambres
  • Surface maison 85 m2

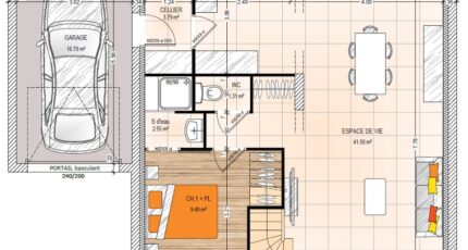
VENTE d'une maison de 5 pièces (85 m²) à Chalonnes-sur-Loire
MAISON 5 PIÈCES NEUVE - PROCHE D'ANGERS
À deux pas d'Angers, nous sommes ravis de vous présenter cette maison de 5 pièces de 85 m² à Chalonnes-sur-Loire (49290).
Cette maison comporte 2 niveaux. Son intérieur offre trois chambres, une cuisine et deux salles de bains. La maison est neuve.
Le terrain de la propriété est de 312 m².
Il y a l'École Primaire Privée Saint Joseph, l'École Élémentaire Publique Mixte 2 Joubert et l'École Maternelle Publique le Petit Prince à moins de 10 minutes à pied. Niveau transports en commun, on trouve trois gares (Chalonnes-sur-Loire, La Possonnière et Savennières-Béhuard) à moins de 10 minutes en voiture. L'autoroute A11 est accessible à 10 km. Il y a un tennis, une bibliothèque, un bassin de natation, des commerces, des boulangeries, un supermarché, deux boucheries-charcuteries et un bureau de poste dans les environs.
Elle est à vendre pour la somme de 218 900 €.
Contactez Roman SALAS (02-41-77-17-17) pour toute question sur cette maison. Maisons Bernard Jambert Angers vous accompagne dans tous vos projets immobiliers et dans toutes vos démarches.

Mentions légales

Terrain proposé par un partenaire foncier selon disponibilités et autorisation de publicité au prix de 28 080 €. Hors droit d'enregistrement et frais de notaire. Maison proposée, avec un contrat de construction de maison individuelle, dans le cadre de la loi du 19/12/1990, au prix de 190 820 € (Hors branchements et raccordements, papiers peints, peintures, revêtement de sol dans les chambres, qui sont chiffrés dans les travaux qui restent à charge du client. Tarif modifiable sans préavis). Étiquette énergie : A. Différents modèles disponibles pour ce terrain. Assurances et garanties du constructeur comprises (RC professionnelle, décennale, dommage ouvrage).

Contactez l'agence de Angers

02 41 77 17 17

    * Champs obligatoires

    Vos informations sont traitées par HEXAOM et transmises à un conseiller commercial qui vous contactera afin de répondre à votre demande. Les plans et images présentés sur notre site sont la propriété d’HEXAOM et ne peuvent pas être reproduits sans son accord. Pour retrouver notre politique de protection des données personnelles et exercer vos droits conformément à la « loi informatique et liberté » cliquez-ici.