Maison neuve à
Chalonnes-sur-Loire (49290) Référence : RS2352050_2

Prix du projet : Maison avec Terrain

prix 218 900 €

  • 5 pièces
  • 3 chambres
  • Surface maison 85 m2

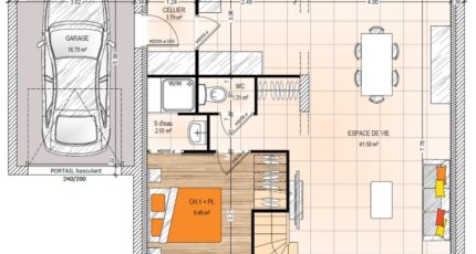
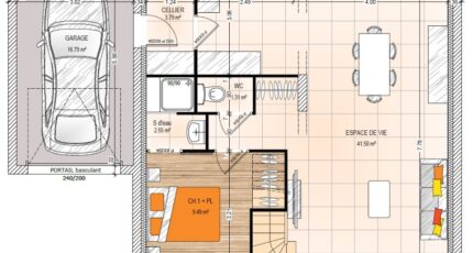
Maison de 5 pièces (85 m²) en vente à Chalonnes-sur-Loire
MAISON 5 PIÈCES NEUVE - PROCHE D'ANGERS
En vente : située à 21 km d'Angers, nous sommes heureux de vous proposer cette maison de 5 pièces de 85 m² et de 312 m² de terrain à Chalonnes-sur-Loire (49290).
C'est une maison de 2 niveaux. Elle est composée de trois chambres, d'une cuisine et de deux salles de bains. La maison est neuve.
Il y a l'École Primaire Privée Saint Joseph, l'École Élémentaire Publique Mixte 2 Joubert et l'École Maternelle Publique le Petit Prince à moins de 10 minutes à pied. Niveau transports, on trouve trois gares (Chalonnes-sur-Loire, La Possonnière et Savennières-Béhuard) à moins de 10 minutes en voiture. L'autoroute A11 est accessible à 10 km. Il y a un tennis, une bibliothèque, un bassin de natation, des commerces, des boulangeries, un supermarché, des épiceries et un bureau de poste à proximité.
Elle est à vendre pour la somme de 218 900 €.
N'hésitez pas à prendre contact avec notre agence (SALAS Roman : 02-41-77-17-17) pour toute information sur cette maison ou sur les modalités de vente.

Mentions légales

Terrain proposé par un partenaire foncier selon disponibilités et autorisation de publicité au prix de 28 080 €. Hors droit d'enregistrement et frais de notaire. Maison proposée, avec un contrat de construction de maison individuelle, dans le cadre de la loi du 19/12/1990, au prix de 190 820 € (Hors branchements et raccordements, papiers peints, peintures, revêtement de sol dans les chambres, qui sont chiffrés dans les travaux qui restent à charge du client. Tarif modifiable sans préavis). Étiquette énergie : A. Différents modèles disponibles pour ce terrain. Assurances et garanties du constructeur comprises (RC professionnelle, décennale, dommage ouvrage).

Contactez l'agence de Angers

02 41 77 17 17

    * Champs obligatoires

    Vos informations sont traitées par HEXAOM et transmises à un conseiller commercial qui vous contactera afin de répondre à votre demande. Les plans et images présentés sur notre site sont la propriété d’HEXAOM et ne peuvent pas être reproduits sans son accord. Pour retrouver notre politique de protection des données personnelles et exercer vos droits conformément à la « loi informatique et liberté » cliquez-ici.