Maison neuve à
Candé (49440) Référence : CP2398308_2

Prix du projet : Maison avec Terrain

prix 298 000 €

  • 6 pièces
  • 4 chambres
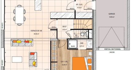
  • Surface maison 130 m2

VENTE d'une maison de 6 pièces (130 m²) à Candé
EMPLACEMENT PRIVILÉGIÉ - MAISON 6 PIÈCES NEUVE
À vendre : bénéficiant d'un emplacement privilégié dans Candé (49440), nous vous présentons cette maison de 6 pièces de 130 m² et de 300 m² de terrain.
Cette maison comporte 2 niveaux. Elle est composée de quatre chambres, d'une cuisine et de deux salles de bains. Cette maison est neuve.
Cette maison est située dans un secteur convoité. Le Collège Privé Sainte Emilie, l'École Primaire Privée et l'École Primaire Publique le Val de l'Erdre se trouvent à moins de 10 minutes à pied. Il y a une bibliothèque, un tennis, des commerces, deux boulangeries, une épicerie, une boucherie-charcuterie et un bureau de poste à proximité. Ne manquez pas le marché Centre-Ville tous les lundis matin.
Son prix de vente est de 298 000 €.
N'hésitez pas à prendre contact avec Carole PORCHER (06-88-98-52-77) pour obtenir de plus amples renseignements sur le bien.

Mentions légales

Terrain proposé par un partenaire foncier selon disponibilités et autorisation de publicité au prix de 40 000 €. Hors droit d'enregistrement et frais de notaire. Terrain + Maison proposés au prix de 298 000 € (Hors branchements et raccordements, papiers peints, peintures, revêtement de sol dans les chambres. Tarif modifiable sans préavis). Etiquette énergie : A. Différents modèles disponibles pour ce terrain. Assurances et garanties du constructeur (RC professionnelle, décennale, dommage ouvrage, garantie de remboursement de l'acompte, livraison à prix et délai convenu) : https://www.maisons-bernard-jambert.com/informations-legales/.

Contactez l'agence de Angers

02 41 77 17 17

    * Champs obligatoires

    Vos informations sont traitées par HEXAOM et transmises à un conseiller commercial qui vous contactera afin de répondre à votre demande. Les plans et images présentés sur notre site sont la propriété d’HEXAOM et ne peuvent pas être reproduits sans son accord. Pour retrouver notre politique de protection des données personnelles et exercer vos droits conformément à la « loi informatique et liberté » cliquez-ici.