Maison neuve à
Briollay (49125) Référence : RS2343660_3

Prix du projet : Maison avec Terrain

prix 246 200 €

  • 5 pièces
  • 3 chambres
  • Surface maison 79 m2

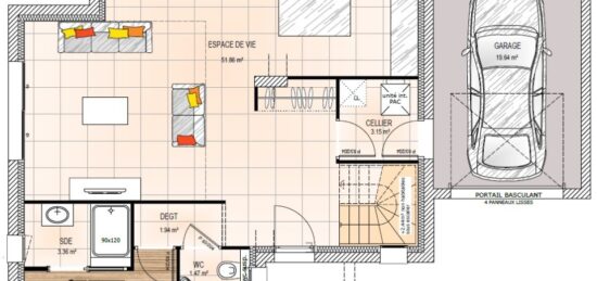
VENTE : maison F5 (79 m²) à Briollay
PROCHE D'ANGERS - MAISON 5 PIÈCES NEUVE
En vente : située à quelques kilomètres d'Angers, à Briollay (49125), notre agence Maisons Bernard Jambert Angers est heureuse de vous présenter cette maison de 5 pièces de plain-pied de 79 m² et de 980 m² de terrain. Conçue de plain-pied, elle compte trois chambres, une cuisine et une salle de bains.
Cette maison est neuve.
Il y a l'École Primaire Publique Georges Hubert à moins de 10 minutes à pied et deux crèches. Niveau transports, on trouve trois gares (Le Vieux Briollay, Tiercé et Écouflant) à moins de 10 minutes en voiture. Les autoroutes A11 et A87N sont accessibles à moins de 7 km. Il y a un port de plaisance, un tennis, une boulangerie, deux commerces et deux épiceries à quelques minutes à peine.
Elle est proposée à l'achat pour 246 200 €.
N'hésitez pas à prendre contact avec notre constructeur (Roman SALAS : 02-41-77-17-17) pour toute information sur cette maison. Donnez vie à vos projets immobiliers avec Maisons Bernard Jambert Angers.

Mentions légales

Terrain proposé par un partenaire foncier selon disponibilités et autorisation de publicité au prix de 85 000 €. Hors droit d'enregistrement et frais de notaire. Maison proposée, avec un contrat de construction de maison individuelle, dans le cadre de la loi du 19/12/1990, au prix de 161 200 € (Hors branchements et raccordements, papiers peints, peintures, revêtement de sol dans les chambres, qui sont chiffrés dans les travaux qui restent à charge du client. Tarif modifiable sans préavis). Étiquette énergie : A. Différents modèles disponibles pour ce terrain. Assurances et garanties du constructeur comprises (RC professionnelle, décennale, dommage ouvrage).

Contactez l'agence de Angers

02 41 77 17 17

    * Champs obligatoires

    Vos informations sont traitées par HEXAOM et transmises à un conseiller commercial qui vous contactera afin de répondre à votre demande. Les plans et images présentés sur notre site sont la propriété d’HEXAOM et ne peuvent pas être reproduits sans son accord. Pour retrouver notre politique de protection des données personnelles et exercer vos droits conformément à la « loi informatique et liberté » cliquez-ici.