Maison neuve à
Beauvau (49140) Référence : RS2386598_1

Prix du projet : Maison avec Terrain

prix 214 500 €

  • 5 pièces
  • 3 chambres
  • Surface maison 85 m2

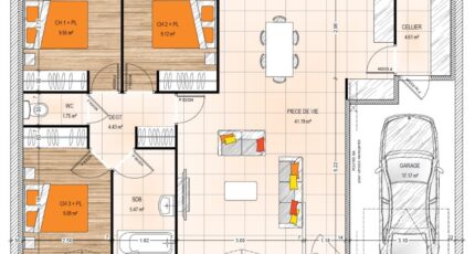
VENTE d'une maison de 5 pièces (85 m²) à Beauvau
MAISON 5 PIÈCES NEUVE - PROCHE D'ANGERS
À vendre : localisée à quelques kilomètres d'Angers, laissez vous charmer par cette maison de 5 pièces de plain-pied de 85 m² et de 563 m² de terrain à Beauvau (49140).
Conçue de plain-pied, elle compte trois chambres, une cuisine et une salle de bains. Cette maison est neuve.
Plusieurs établissements scolaires (maternelle, élémentaire, primaire et collège) sont implantés à moins de 10 minutes en voiture, tout comme une structure d'accueil pour les tout-petits à moins de 10 minutes à pied. Les autoroutes A11 et A85 sont accessibles à moins de 8 km. Il y a des bibliothèques, des tennis, des commerces, des boulangeries, trois supermarchés, trois épiceries et quatre boucheries-charcuteries à proximité. Ne manquez pas le marché Place Gautier chaque jeudi matin.
Son prix de vente est de 214 500 €.
Contactez notre agence (Roman SALAS : 02-41-77-17-17) pour plus d'informations sur la maison. Maisons Bernard Jambert Angers vous accompagne à toutes les étapes de l'achat et dans toutes vos démarches.

Mentions légales

Terrain proposé par un partenaire foncier selon disponibilités et autorisation de publicité au prix de 36 818 €. Hors droit d'enregistrement et frais de notaire. Terrain + Maison proposés au prix de 214 500 € (Hors branchements et raccordements, papiers peints, peintures, revêtement de sol dans les chambres. Tarif modifiable sans préavis). Etiquette énergie : A. Différents modèles disponibles pour ce terrain. Assurances et garanties du constructeur (RC professionnelle, décennale, dommage ouvrage, garantie de remboursement de l'acompte, livraison à prix et délai convenu) : https://www.maisons-bernard-jambert.com/informations-legales/.

Contactez l'agence de Angers

02 41 77 17 17

    * Champs obligatoires

    Vos informations sont traitées par HEXAOM et transmises à un conseiller commercial qui vous contactera afin de répondre à votre demande. Les plans et images présentés sur notre site sont la propriété d’HEXAOM et ne peuvent pas être reproduits sans son accord. Pour retrouver notre politique de protection des données personnelles et exercer vos droits conformément à la « loi informatique et liberté » cliquez-ici.