Maison neuve à
Beauvau (49140) Référence : RS2380490_2

Prix du projet : Maison avec Terrain

prix 211 400 €

  • 5 pièces
  • 3 chambres
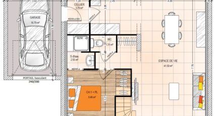
  • Surface maison 85 m2

VENTE d'une maison de 5 pièces (85 m²) à Beauvau
MAISON 5 PIÈCES NEUVE - PROCHE D'ANGERS
À 26 km d'Angers, nous sommes ravis de vous présenter cette maison de 5 pièces de 85 m² et de 563 m² de terrain à Beauvau (49140). Son intérieur propose trois chambres, une cuisine et deux salles de bains.
Cette maison compte 2 niveaux. Elle est neuve.
Il y a plusieurs écoles (maternelle, élémentaire, primaire et collège) à moins de 10 minutes en voiture, tout comme une crèche à moins de 10 minutes à pied. Les autoroutes A11 et A85 sont accessibles à moins de 8 km. On trouve des bibliothèques, des tennis, des commerces, des boulangeries, trois supermarchés, quatre boucheries-charcuteries et un bureau de poste à proximité du bien. Ne manquez pas le marché Place Gautier tous les jeudis matin.
Son prix de vente est de 211 400 €.
N'hésitez pas à prendre contact avec Roman SALAS (02-41-77-17-17) pour toute question sur la maison, sur les modalités de vente ou sur les démarches à suivre.

Mentions légales

Terrain proposé par un partenaire foncier selon disponibilités et autorisation de publicité au prix de 36 818 €. Hors droit d'enregistrement et frais de notaire. Terrain + Maison proposés au prix de 174 582 € (Hors branchements et raccordements, papiers peints, peintures, revêtement de sol dans les chambres. Tarif modifiable sans préavis). Etiquette énergie : A. Différents modèles disponibles pour ce terrain. Assurances et garanties du constructeur (RC professionnelle, décennale, dommage ouvrage, garantie de remboursement de l'acompte, livraison à prix et délai convenu) : https://www.maisons-bernard-jambert.com/informations-legales/.

Contactez l'agence de Angers

02 41 77 17 17

    * Champs obligatoires

    Vos informations sont traitées par HEXAOM et transmises à un conseiller commercial qui vous contactera afin de répondre à votre demande. Les plans et images présentés sur notre site sont la propriété d’HEXAOM et ne peuvent pas être reproduits sans son accord. Pour retrouver notre politique de protection des données personnelles et exercer vos droits conformément à la « loi informatique et liberté » cliquez-ici.