Maison neuve à
Baugé (49150) Référence : RS2370622_1

Prix du projet : Maison avec Terrain

prix 217 800 €

  • 5 pièces
  • 3 chambres
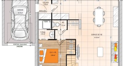
  • Surface maison 85 m2

Baugé : maison F5 (85 m²) à vendre
MAISON 5 PIÈCES NEUVE
En vente à Baugé (49150), Maisons Bernard Jambert Angers vous présente cette maison de 5 pièces de 85 m² et de 441 m² de terrain.
Cette maison compte 2 niveaux. Son intérieur inclut trois chambres, une cuisine et deux salles de bains. La maison est neuve.
Il y a quatre établissements scolaires à moins de 10 minutes à pied et une crèche. Les autoroutes A85 et A11 sont accessibles à moins de 18 km. On trouve un tennis, un bassin de natation, une bibliothèque, des commerces, des boulangeries, un supermarché, un bureau de poste et une épicerie dans les environs. Enfin, le marché Place du marché anime les environs chaque lundi après-midi.
Elle est à vendre pour la somme de 217 800 €.
Contactez Roman SALAS (tél : 02-41-77-17-17) pour toute information sur cette maison, sur les modalités de vente ou sur les démarches à suivre.

Mentions légales

Terrain proposé par un partenaire foncier selon disponibilités et autorisation de publicité au prix de 35 280 €. Hors droit d'enregistrement et frais de notaire. Terrain + Maison proposés au prix de 182 520 € (Hors branchements et raccordements, papiers peints, peintures, revêtement de sol dans les chambres. Tarif modifiable sans préavis). Etiquette énergie : A. Différents modèles disponibles pour ce terrain. Assurances et garanties du constructeur (RC professionnelle, décennale, dommage ouvrage, garantie de remboursement de l'acompte, livraison à prix et délai convenu) : https://www.maisons-bernard-jambert.com/informations-legales/.

Contactez l'agence de Angers

02 41 77 17 17

    * Champs obligatoires

    Vos informations sont traitées par HEXAOM et transmises à un conseiller commercial qui vous contactera afin de répondre à votre demande. Les plans et images présentés sur notre site sont la propriété d’HEXAOM et ne peuvent pas être reproduits sans son accord. Pour retrouver notre politique de protection des données personnelles et exercer vos droits conformément à la « loi informatique et liberté » cliquez-ici.