Maison neuve à
Baugé (49150) Référence : RS2358644_4

Prix du projet : Maison avec Terrain

prix 337 800 €

  • 5 pièces
  • 4 chambres
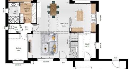
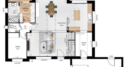
  • Surface maison 135 m2

VENTE d'une maison F5 (135 m²) à Baugé
MAISON 5 PIÈCES NEUVE
Maisons Bernard Jambert Angers vous propose cette maison de 5 pièces de 135 m² à Baugé (49150). Elle dispose de quatre chambres, d'une cuisine et de deux salles de bains.
Le terrain de la maison s'étend sur 441 m².
Il s'agit d'une maison de 2 niveaux. Elle est neuve.
Il y a quatre établissements scolaires à moins de 10 minutes à pied et une crèche. Les autoroutes A85 et A11 sont accessibles à moins de 18 km. On trouve un tennis, un bassin de natation, une bibliothèque, des commerces, des boulangeries, un supermarché, une supérette et une épicerie à proximité. Ne manquez pas le marché Place du marché chaque lundi après-midi.
Elle est à vendre pour la somme de 337 800 €.
N'hésitez pas à prendre contact avec Roman SALAS (02-41-77-17-17) pour tout renseignement sur cette propriété, sur les modalités de vente ou sur les démarches à suivre.

Mentions légales

Terrain proposé par un partenaire foncier selon disponibilités et autorisation de publicité au prix de 35 800 €. Hors droit d'enregistrement et frais de notaire. Terrain + Maison proposés au prix de 302 000 € (Hors branchements et raccordements, papiers peints, peintures, revêtement de sol dans les chambres. Tarif modifiable sans préavis). Etiquette énergie : A. Différents modèles disponibles pour ce terrain. Assurances et garanties du constructeur (RC professionnelle, décennale, dommage ouvrage, garantie de remboursement de l'acompte, livraison à prix et délai convenu) : https://www.maisons-bernard-jambert.com/informations-legales/.

Contactez l'agence de Angers

02 41 77 17 17

    * Champs obligatoires

    Vos informations sont traitées par HEXAOM et transmises à un conseiller commercial qui vous contactera afin de répondre à votre demande. Les plans et images présentés sur notre site sont la propriété d’HEXAOM et ne peuvent pas être reproduits sans son accord. Pour retrouver notre politique de protection des données personnelles et exercer vos droits conformément à la « loi informatique et liberté » cliquez-ici.