Maison neuve à
Baugé (49150) Référence : RS2358644_2

Prix du projet : Maison avec Terrain

prix 218 700 €

  • 5 pièces
  • 3 chambres
  • Surface maison 85 m2

Baugé : maison de 5 pièces (85 m²) en vente
MAISON 5 PIÈCES NEUVE
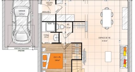
Nous sommes ravis de vous proposer cette maison de 5 pièces de 85 m² et de 441 m² de terrain à Baugé (49150). Son intérieur dispose de trois chambres, d'une cuisine et de deux salles de bains.
Cette maison possède 2 niveaux. Elle est neuve.
Quatre établissements scolaires sont implantés à moins de 10 minutes à pied, tout comme une structure d'accueil pour les enfants en bas âge. Les autoroutes A85 et A11 sont accessibles à moins de 18 km. Il y a un tennis, un bassin de natation, une bibliothèque, des commerces, des boulangeries, un supermarché, une épicerie et une supérette à quelques minutes à peine. Le marché Place du marché anime les environs chaque lundi après-midi.
Son prix de vente est de 218 700 €.
N'hésitez pas à prendre contact avec notre agence (Roman SALAS : 02-41-77-17-17) pour obtenir de plus amples informations sur la maison. Maisons Bernard Jambert Angers vous accompagne dans toutes vos démarches et dans tous vos projets immobiliers.

Mentions légales

Terrain proposé par un partenaire foncier selon disponibilités et autorisation de publicité au prix de 35 800 €. Hors droit d'enregistrement et frais de notaire. Terrain + Maison proposés au prix de 182 900 € (Hors branchements et raccordements, papiers peints, peintures, revêtement de sol dans les chambres. Tarif modifiable sans préavis). Etiquette énergie : A. Différents modèles disponibles pour ce terrain. Assurances et garanties du constructeur (RC professionnelle, décennale, dommage ouvrage, garantie de remboursement de l'acompte, livraison à prix et délai convenu) : https://www.maisons-bernard-jambert.com/informations-legales/.

Contactez l'agence de Angers

02 41 77 17 17

    * Champs obligatoires

    Vos informations sont traitées par HEXAOM et transmises à un conseiller commercial qui vous contactera afin de répondre à votre demande. Les plans et images présentés sur notre site sont la propriété d’HEXAOM et ne peuvent pas être reproduits sans son accord. Pour retrouver notre politique de protection des données personnelles et exercer vos droits conformément à la « loi informatique et liberté » cliquez-ici.