Maison neuve à
Baugé (49150) Référence : RS2326085_3

Prix du projet : Maison avec Terrain

prix 212 400 €

  • 5 pièces
  • 3 chambres
  • Surface maison 85 m2

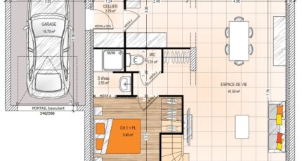
Maison F5 (85 m²) à vendre à Baugé
MAISON 5 PIÈCES NEUVE
Laissez vous charmer par à vendre à Baugé (49150), cette maison de 5 pièces de 85 m² et de 376 m² de terrain. Elle inclut trois chambres, une cuisine et deux salles de bains.
Cette maison possède 2 niveaux. Elle est neuve.
Quatre établissements scolaires sont implantés à moins de 10 minutes à pied, tout comme une crèche. Les autoroutes A85 et A11 sont accessibles à moins de 18 km. On trouve un tennis, un bassin de natation, une bibliothèque, des commerces, des boulangeries, un supermarché, une supérette et un bureau de poste dans les environs. Ne manquez pas le marché Place du marché chaque lundi après-midi.
Son prix de vente est de 212 400 €.
Contactez Roman SALAS (tél : 02-41-77-17-17) pour toute question sur ce bien, sur les démarches à suivre ou sur les modalités de vente. Faites de vos projets immobiliers une réalité avec Maisons Bernard Jambert Angers.

Mentions légales

Terrain proposé par un partenaire foncier selon disponibilités et autorisation de publicité au prix de 30 080 €. Hors droit d'enregistrement et frais de notaire. Maison proposée, avec un contrat de construction de maison individuelle, dans le cadre de la loi du 19/12/1990, au prix de 182 320 € (Hors branchements et raccordements, papiers peints, peintures, revêtement de sol dans les chambres, qui sont chiffrés dans les travaux qui restent à charge du client. Tarif modifiable sans préavis). Étiquette énergie : A. Différents modèles disponibles pour ce terrain. Assurances et garanties du constructeur comprises (RC professionnelle, décennale, dommage ouvrage).

Contactez l'agence de Angers

02 41 77 17 17

    * Champs obligatoires

    Vos informations sont traitées par HEXAOM et transmises à un conseiller commercial qui vous contactera afin de répondre à votre demande. Les plans et images présentés sur notre site sont la propriété d’HEXAOM et ne peuvent pas être reproduits sans son accord. Pour retrouver notre politique de protection des données personnelles et exercer vos droits conformément à la « loi informatique et liberté » cliquez-ici.