Maison neuve à
Baugé (49150) Référence : CP2319228_2

Prix du projet : Maison avec Terrain

prix 289 700 €

  • 5 pièces
  • 5 chambres
  • Surface maison 125 m2

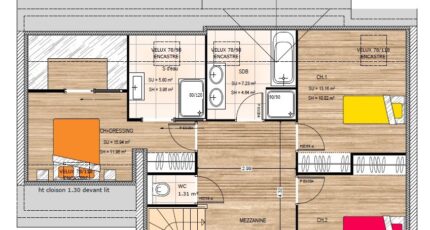
VENTE d'une maison F5 (125 m²) à Baugé
QUARTIER RECHERCHÉ - MAISON 5 PIÈCES NEUVE
Maisons Bernard Jambert Angers vous présente en vente, construite dans un quartier recherché de Baugé (49150), cette maison de 5 pièces de 125 m².
Cette maison comporte 2 niveaux. Son intérieur se divise en cinq chambres, une cuisine et deux salles de bains. La maison est neuve.
Le terrain du bien s'étend sur 339 m².
Cette maison est située dans un secteur convoité. Quatre établissements scolaires se trouvent à moins de 10 minutes à pied, tout comme une structure d'accueil pour les tout-petits. Les autoroutes A85 et A11 sont accessibles à moins de 18 km. Il y a un tennis, un bassin de natation, une bibliothèque, des commerces, des boulangeries, un supermarché, une épicerie et une supérette à proximité. Enfin, le marché Place du marché anime le quartier tous les lundis après-midi.
Elle est à vendre pour la somme de 289 700 €.
N'hésitez pas à prendre contact avec notre agence (PORCHER Carole : 06-88-98-52-77) pour obtenir de plus amples renseignements sur la maison, sur les démarches à suivre ou sur les modalités de vente. Donnez vie à vos projets immobiliers avec Maisons Bernard Jambert Angers.

Mentions légales

Terrain proposé par un partenaire foncier selon disponibilités et autorisation de publicité au prix de 27 600 €. Hors droit d'enregistrement et frais de notaire. Maison proposée, avec un contrat de construction de maison individuelle, dans le cadre de la loi du 19/12/1990, au prix de 262 100 € (Hors branchements et raccordements, papiers peints, peintures, revêtement de sol dans les chambres, qui sont chiffrés dans les travaux qui restent à charge du client. Tarif modifiable sans préavis). Étiquette énergie : A. Différents modèles disponibles pour ce terrain. Assurances et garanties du constructeur comprises (RC professionnelle, décennale, dommage ouvrage).

Contactez l'agence de Angers

02 41 77 17 17

    * Champs obligatoires

    Vos informations sont traitées par HEXAOM et transmises à un conseiller commercial qui vous contactera afin de répondre à votre demande. Les plans et images présentés sur notre site sont la propriété d’HEXAOM et ne peuvent pas être reproduits sans son accord. Pour retrouver notre politique de protection des données personnelles et exercer vos droits conformément à la « loi informatique et liberté » cliquez-ici.