Maison neuve à
Avrillé (49240) Référence : RS2361812_1

Prix du projet : Maison avec Terrain

prix 345 100 €

  • 5 pièces
  • 3 chambres
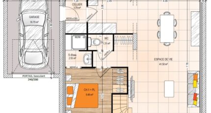
  • Surface maison 85 m2

VENTE : maison de 5 pièces (85 m²) à Avrillé
PROCHE D'ANGERS - MAISON 5 PIÈCES NEUVE
À vendre à deux pas d'Angers, à Avrillé (49240), laissez vous charmer par cette maison de 5 pièces de 85 m² et de 250 m² de terrain.
Il s'agit d'une maison de 2 niveaux. Elle est composée de trois chambres, d'une cuisine et de deux salles de bains. Cette maison est neuve.
On trouve tous les types d'établissements scolaires à moins de 10 minutes à pied et deux structures d'accueil pour les tout-petits. Niveau transports en commun, il y a les gares Angers Saint-Laud, Écouflant et Angers Maître École à moins de 10 minutes en voiture. Les autoroutes A11 et A87N sont accessibles à moins de 8 km. On trouve une bibliothèque, un tennis, trois boulangeries, quatre commerces et une boucherie-charcuterie à proximité de la maison. Ne manquez pas le marché Place du champ de Foire chaque jeudi matin.
Elle est proposée à l'achat pour 245 100 €.
Prenez contact avec Roman SALAS (02-41-77-17-17) pour obtenir de plus amples renseignements sur la maison. Maisons Bernard Jambert Angers est là pour vous accompagner dans toutes vos démarches.

Mentions légales

Terrain proposé par un partenaire foncier selon disponibilités et autorisation de publicité au prix de 150 000 €. Hors droit d'enregistrement et frais de notaire. Terrain + Maison proposés au prix de 195 100 € (Hors branchements et raccordements, papiers peints, peintures, revêtement de sol dans les chambres. Tarif modifiable sans préavis). Etiquette énergie : A. Différents modèles disponibles pour ce terrain. Assurances et garanties du constructeur (RC professionnelle, décennale, dommage ouvrage, garantie de remboursement de l'acompte, livraison à prix et délai convenu) : https://www.maisons-bernard-jambert.com/informations-legales/.

Contactez l'agence de Angers

02 41 77 17 17

    * Champs obligatoires

    Vos informations sont traitées par HEXAOM et transmises à un conseiller commercial qui vous contactera afin de répondre à votre demande. Les plans et images présentés sur notre site sont la propriété d’HEXAOM et ne peuvent pas être reproduits sans son accord. Pour retrouver notre politique de protection des données personnelles et exercer vos droits conformément à la « loi informatique et liberté » cliquez-ici.