Maison neuve à
Ancenis (44150) Référence : MJ2355153_4

Prix du projet : Maison avec Terrain

prix 339 500 €

  • 5 pièces
  • 3 chambres
  • Surface maison 106 m2

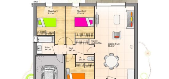
VENTE d'une maison F5 (106 m²) à Ancenis
IDÉALEMENT SITUÉE - MAISON 5 PIÈCES NEUVE
À vendre : idéalement située dans Ancenis (44150), Maisons Bernard Jambert Angers vous propose cette maison de 5 pièces de plain-pied de 106 m² et de 310 m² de terrain.
Elle se divise en trois chambres, une cuisine et une salle de bains. La maison est neuve.
La maison se trouve dans un secteur attractif. Il y a des établissements scolaires du primaire et du secondaire à moins de 10 minutes à pied. Côté transports en commun, on trouve la gare Ancenis à proximité. L'autoroute A11 est accessible à 4 km. Il y a un bassin de natation, deux tennis, des commerces, des boulangeries, trois supermarchés, trois supérettes et une épicerie dans les environs.
Son prix de vente est de 339 500 €.
N'hésitez pas à prendre contact avec notre agence (JANNEAU Mathieu : 06-01-35-24-98) pour toute question sur la maison ou sur les démarches à suivre. Maisons Bernard Jambert Angers est là pour vous accompagner à toutes les étapes de votre projet.

Mentions légales

Terrain proposé par un partenaire foncier selon disponibilités et autorisation de publicité au prix de 111 000 €. Hors droit d'enregistrement et frais de notaire. Maison proposée, avec un contrat de construction de maison individuelle, dans le cadre de la loi du 19/12/1990, au prix de 228 500 € (Hors branchements et raccordements, papiers peints, peintures, revêtement de sol dans les chambres, qui sont chiffrés dans les travaux qui restent à charge du client. Tarif modifiable sans préavis). Étiquette énergie : A. Différents modèles disponibles pour ce terrain. Assurances et garanties du constructeur comprises (RC professionnelle, décennale, dommage ouvrage).

Contactez l'agence de Angers

02 41 77 17 17

    * Champs obligatoires

    Vos informations sont traitées par HEXAOM et transmises à un conseiller commercial qui vous contactera afin de répondre à votre demande. Les plans et images présentés sur notre site sont la propriété d’HEXAOM et ne peuvent pas être reproduits sans son accord. Pour retrouver notre politique de protection des données personnelles et exercer vos droits conformément à la « loi informatique et liberté » cliquez-ici.